3550 Langenlois, Capistrangasse 11/4B/2
| Monatl. Kosten inkl. USt | € 640 |
| Finanzierungsbeitrag | € 21.047,94 |
2002
ab sofort
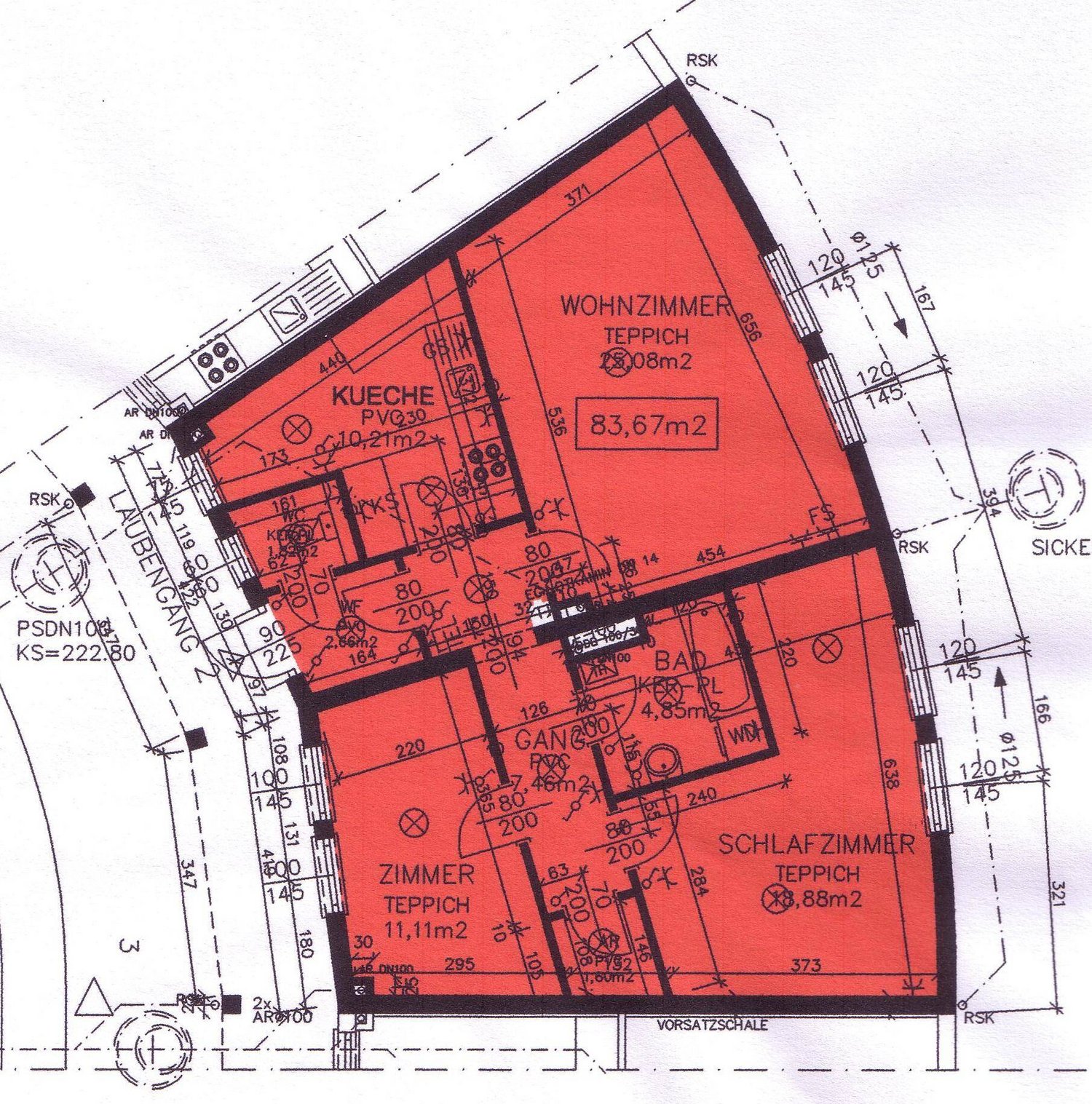
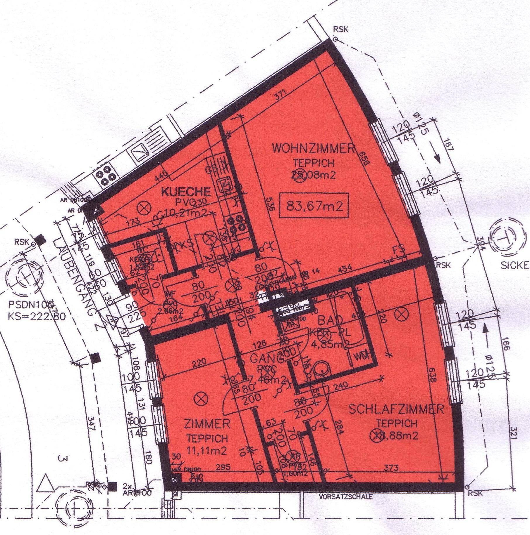
| Wohnzimmer | |
| Schlafzimmer | |
| Küche | |
| WC | |
| Badezimmer | |
| Abstellraum | |
| Vorzimmer |
| Finanzierungsbeitrag | € 21.047,94 |
| Monatl. Kosten inkl. USt Miete inkl. Betriebskosten, exkl. Heizung und Strom | € 640 |
Informieren Sie sich über einen möglichen Wohnzuschuss für Ihre Immobilie.
| HWB (kWh/m²/Jahr) | 57 |
11_4B_2 (1)
11_4B_2 (2)
11_4B_2 (3)
11_4B_2 (4)
Capistrang. 11_Stg. 4B_Top 2
Capistrangasse 11/4B/2, 3550 Langenlois
Lagebeschreibung
Langenlois liegt im südöstlichen Waldviertel (im Bezirk Krems) am unteren Ende des Kamptales und am Fuße des Manhartsberges. Langenlois wird vom Loisbach durchflossen, der in den Kamp mündet. Langenlois verfügt über eine gut ausgebaute Infrastruktur, die sowohl für Einwohner als auch für Besucher attraktiv ist. Dazu gehören Einrichtungen wie der Bahnhof Langenlois mit Anbindung an die Kamptalbahn, die Freizeitanlage Kamp mit ihren vielfältigen Sport- und Erholungsmöglichkeiten, diverse Weingüter und Weinkeller, sowie ein pulsierendes Stadtzentrum mit Märkten und Gastronomie.
Projektbeschreibung
Das Bauprojekt besteht aus mehreren Baubaschnitten und aus insgesamt 67 Wohneinheiten und 66 KFZ- Stellplätzen. Die Wohnungen sind mit Freiflächen wie Balkonen ausgestattet und bieten durch die Nähe zum Loisbach ein frisches Lüftchen im Sommer.

Wohnen am Loisbach
Das Bauprojekt besteht aus mehreren Baubaschnitten und aus insgesamt 67 Wohneinheiten und 66 KFZ- Stellplätzen. Die Wohnungen sind mit Freiflächen wie Balkonen ausgestattet und bieten durch die Nähe zum Loisbach ein frisches Lüftchen im Sommer.





