Fertigstellung
Juni 2018
Mieten und Kaufen
2 Wohnungen, 1 Reihenhaus & 3 Garagen / Stellplätze
Größe und Zimmer

60.12 m2 bis 100.05 m2, 2 bis 4 Zimmer

2 Wohnungen, 1 Reihenhaus & 3 Garagen / Stellplätze zum Mieten
Änderungen vorbehalten
APL 23
0 m2
    Miete mit Kaufoption
    Preis auf Anfrage
    APL 24
    0 m2
      Miete mit Kaufoption
      Preis auf Anfrage
      APL 33
      0 m2
        Miete mit Kaufoption
        Preis auf Anfrage
        Top 7
        60,12 m2
        2 Zimmer
        1.OG
        • Balkon / Loggia / Terrasse
        Miete mit Kaufoption + Wohnzuschuss
        € 732
        Top 8
        60,23 m2
        2 Zimmer
        1.OG
        • Balkon / Loggia / Terrasse
        Miete mit Kaufoption + Wohnzuschuss
        € 720
        RH 2
        100,05 m2
        4 Zimmer
        • Balkon / Loggia / Terrasse
        • Garten
        Miete mit Kaufoption + Wohnzuschuss
        € 1.020

        Garagen & Stellplätze verfügbar

        Projektbeschreibung

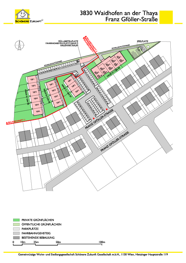
        Die Wohnanlage besteht aus einer Reihenhauszeile (Haus C) und einer Wohnhausanlage (Haus D), beide teilweise unterkellert. Reihenhäuser:Drei dreigeschossige Reihenhäuser mit rund 100 m² Wohnfläche bieten westseitige Wohn- und Essbereiche mit Terrassen und Gärten. Der Zugang erfolgt ostseitig, die kompakte Bauweise wird durch eine seitlich angeordnete Wendelstiege ergänzt. Wohnhausanlage:Das Wohnhaus umfasst 10 Einheiten auf zwei Geschossen. Erdgeschosswohnungen verfügen über Gärten, die darüber liegenden Einheiten über Loggien. Pro Geschoss gibt es zwei Dreizimmerwohnungen und drei Zweizimmerwohnungen mit 60 m² bis 72 m² Wohnfläche. PKW-Stellplätze:20 Stellplätze zwischen den Gebäuden sowie zusätzliche Besucherparkplätze im südlichen Grundstücksbereich sorgen für ausreichende Parkmöglichkeiten.