2 Zimmer mit Sübalkon
- Aufzug
- Balkon / Loggia / Terrasse
| Monatl. Kosten inkl. USt | € 877,18 |
| Finanzierungsbeitrag | € 8.533,43 |
- Garage
- Kontrollierte Wohnraumlüftung
- Aufzug
- Kinderwagen/Fahrradraum
- Sat-Anlage
- Fernwärme
2011
ab sofort
| Garage | |
| Kontrollierte Wohnraumlüftung | |
| Aufzug | |
| Kinderwagen/Fahrradraum | |
| Sat-Anlage | |
| Fernwärme |
| Wohnküche | |
| Schlafzimmer | |
| WC | |
| Badezimmer | |
| Abstellraum | |
| Windfang | |
| Balkon / Loggia / Terrasse | |
| Kellerraum |
| Finanzierungsbeitrag | € 8.533,43 |
| Monatl. Kosten inkl. USt Miete inkl. Betriebskosten, exkl. Heizung und Strom | € 877,18 |
Informieren Sie sich über einen möglichen Wohnzuschuss für Ihre Immobilie.
| HWB (kWh/m²/Jahr) | 28 |
Balkon
Wohnzimmer
Kochnische
Kochnische
Zimmer
Vorraum
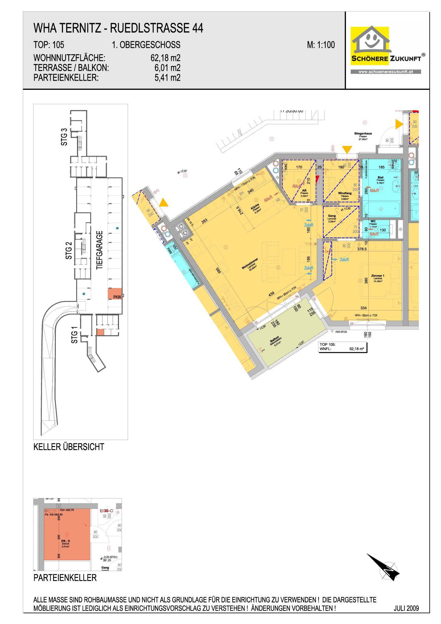
Grundriss Top 105
Ruedlstraße 44a/1/5, 2630 Ternitz
Lagebeschreibung
Die wunderschöne Gemeinde Ternitz liegt im Bezirk Neunkirchen, im unteren Schwarzatal. Der Ort besticht durch idyllisch Ausflugsziele und bekannte Sehenswürdigkeiten, wie die Burg Stixenstein und die Ruine Dunkelstein. Natürlich findet sich nicht nur ein Angebot für sportliche und kulturinteressierte. Ternitz bietet eine gut ausgebaute Infrastruktur, gemütlich Einkehrmöglichkeiten und viele Rückzugsorte um die Seele baumeln zu lassen.
Immobilienbeschreibung
Die 2-Zimmerwohnung befindet sich im ersten Obergeschoss und ist über einen Lift erreichbar.Sie hat eine Wohnfläche von 62,36 m² und verfügt über einen 6 m² großen, südlich ausgerichteten Balkon.Jede Wohnung verfügt über ein Kellerabteil im Kellergeschoss und einen Tiefgaragenstellplatz.Ein Kinderwagen- und Fahrradraum sowie ein Wasch- und Trockenraum stehen allen Mietern zur freien Verfügung.
Projektbeschreibung
Die Wohnanlage besteht aus drei Baukörpern mit jeweils zwei Vollgeschossen und einem zurückgesetzten, penthouseartigen 2. Obergeschoss. Jede Wohnung bietet einen direkten Zugang zwischen Wohnbereich und dem eigenen Garagenplatz, wodurch ein Höchstmaß an Komfort und Praktikabilität gewährleistet wird. Im Erdgeschoss verfügen die Wohnungen über Wohnflächen zwischen ca. 55 und 90 m² und sind mit einer Terrasse sowie einem Eigengarten ausgestattet. Die Wohnungen im 1. Obergeschoss bieten ebenfalls 55 bis 90 m² Wohnfläche und überzeugen mit großzügigen Balkonen. Das 2. Obergeschoss beherbergt exklusive Wohnungen mit etwa 100 m², die alle über eine private Dachterrasse verfügen. Jede Wohneinheit ist zudem mit einem Kellerabteil und einem Tiefgaragenplatz ausgestattet. Ergänzend stehen den Bewohnern ein Fahrradabstellraum je Stiege im Erdgeschoss, ein zentraler Müllraum neben der Tiefgarageneinfahrt sowie drei gemeinschaftlich nutzbare Trockenräume im Kellergeschoss zur Verfügung.

Attraktive Mietwohnungen in Ternitz
Tolle Mietwohnungen in Ternitz mit guten Grundrissen und attraktiven Freiflächen.







