3-Zimmer-Gartenwohnung in Zeillern
- Balkon / Loggia / Terrasse
- Garten
- Garage / Stellplatz
- Aufzug
| Monatl. Kosten inkl. USt | € 880 |
| Finanzierungsbeitrag | € 23.962,51 |
- Balkon / Loggia / Terrasse
- Garten
- Garage / Stellplatz
- Kinderwagen/Fahrradraum
- Kellerabteil/Einlagerungsraum
- Aufzug
- Kontrollierte Wohnraumlüftung
- Photovoltaikanlage
- Notkamin
- Wärmepumpe
- Fußbodenheizung
2023
Juni 2026
| Balkon / Loggia / Terrasse | |
| Garten | |
| Garage / Stellplatz | |
| Kinderwagen/Fahrradraum | |
| Kellerabteil/Einlagerungsraum | |
| Aufzug | |
| Kontrollierte Wohnraumlüftung | |
| Photovoltaikanlage | |
| Notkamin | |
| Wärmepumpe | |
| Fußbodenheizung |
| Finanzierungsbeitrag | € 23.962,51 |
| Monatl. Kosten inkl. USt Miete inkl. Betriebskosten, exkl. Heizung und Strom | € 880 |
| HWB (kWh/m²/Jahr) | 33 |
| fGEE | 0.73 |
1_4
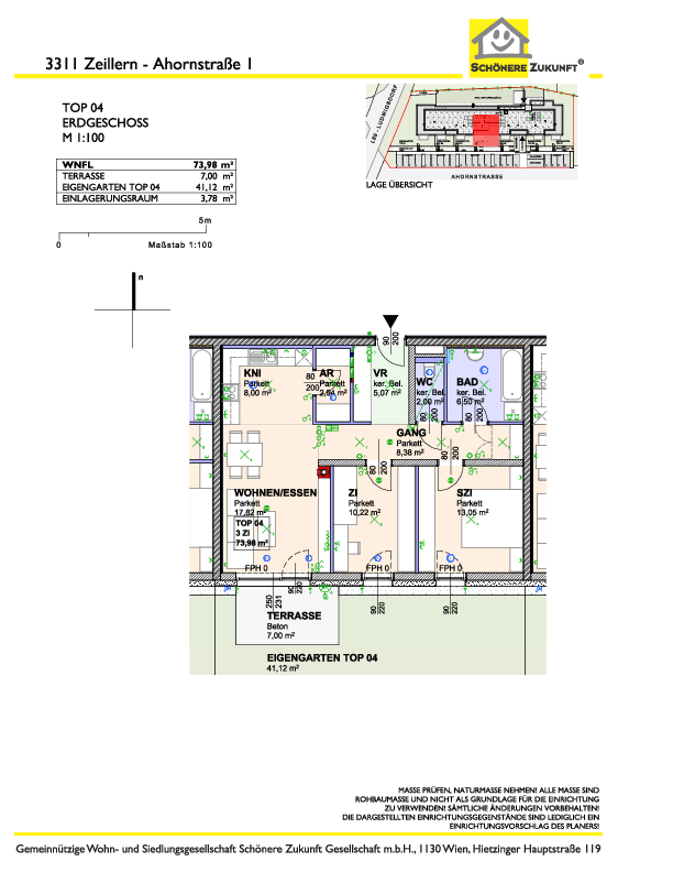
Ahornstraße 1/4, 3311 Zeillern
Lagebeschreibung
Zeillern liegt nur ca. 5 km westlich der Bezirkshauptstadt Amstetten und 2 km von der Autobahnabfahrt Amstetten West entfernt. Trotzdem kann man hier die Ruhe und die vielen Vorteile des ländlichen Lebensraumes in vollen Zügen genießen. Nicht nur der NÖ Blasmusikverband, der seinen Sitz in Zeillern hat, lockt mit musikalischen Vorstellungen, dank des Schloss Hotel Zeillern, das unter anderem als Seminar- und Schulungszentrum fungiert, bietet sich Interessierten eine breite Auswahl an kulturellen und musikalischen Programmpunkten. Doch auch Naturliebhaber kommen auf ihre Kosten. Egal ob zu Fuß oder mit dem Fahrrad, die schöne Gemeinde im Herzen des Mostviertels, lädt zu den unterschiedlichsten Outdoor-Aktivitäten ein.
Projektbeschreibung
Die Wohnhausanlage Beinhaltet insgesamt 19 geförderte Mietwohnungen mit 2 bis 4 Zimmern. Das Gebäude besteht aus einem Erdgeschoss, einem Obergeschoss und einem Dachgeschoss, wobei jedes Stockwerk über einen Lift erreichbar ist. Die zu den Wohnungen zugehörigen Einlagerungsräume sind im Stiegenhaus situiert. Jede Wohnung verfügt über eine südseitig ausgerichtete Freifläche. Jeder Wohneinheit ist ein Carport zugeteilt.

Geförderte Wohnungen in Zeillern mit Kaufoption!
19 geförderte Mietwohnungen mit 2 bis 4 Zimmern, mit Freiflächen, Einlagerungsraum und Carport.








