3-Zimmer-Wohnung mit Balkon und 2 Garagenplätzen - Wohnzuschuss möglich
- Balkon / Loggia / Terrasse
- Garage / Stellplatz
- Aufzug
| Monatl. Kosten inkl. USt | € 1.090 |
| Finanzierungsbeitrag | € 17.151,75 |
- Balkon / Loggia / Terrasse
- Garage / Stellplatz
- Kinderwagen/Fahrradraum
- Kellerabteil/Einlagerungsraum
- Aufzug
- Kontrollierte Wohnraumlüftung
- Photovoltaikanlage
- Kinderspielplatz
- Notkamin
- Wärmepumpe
- Fußbodenheizung
2017
April 2026
| Balkon / Loggia / Terrasse | |
| Garage / Stellplatz | |
| Kinderwagen/Fahrradraum | |
| Kellerabteil/Einlagerungsraum | |
| Aufzug | |
| Kontrollierte Wohnraumlüftung | |
| Photovoltaikanlage | |
| Kinderspielplatz | |
| Notkamin | |
| Wärmepumpe | |
| Fußbodenheizung |
| Finanzierungsbeitrag | € 17.151,75 |
| Monatl. Kosten inkl. USt Miete inkl. Betriebskosten, exkl. Heizung und Strom | € 1.090 |
Informieren Sie sich über einen möglichen Wohnzuschuss für Ihre Immobilie.
| HWB (kWh/m²/Jahr) | 30 |
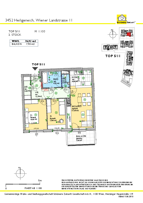
A-02.19 TOP5_11
Wiener Landstrasse 11/5/11, 3452 Heiligeneich
Lagebeschreibung
Die Gemeinde Heiligeneich gehört politisch zur Marktgemeinde Atzenbrugg und liegt im Städtedreieck Tulln - St. Pölten - Krems, am Rande des Tullnerfeldes. Bezirkshauptstadt ist die Rosenstadt Tulln, die Bundeshauptstadt Wien liegt nur ca. 40 km entfernt.
Immobilienbeschreibung
Die ca. 77 m² große 3-Zimmer-Wohnung befindet sich im 2. Obergeschoss der Stiege 5 und ist bequem über den Lift erreichbar. Helle Räume und eine funktionale Raumaufteilung schaffen ein angenehmes Wohnambiente. Zur Wohnung gehört ein etwa 8 m² großer, südlich ausgerichteter Balkon. Zwei in der Miete inkludierte Garagenstellplätze und ein Kellerabteil sind der Wohnung zugeordnet. Ein Kinderwagen- und Fahrradabstellraum steht allen Bewohnern zur gemeinsamen Nutzung zur Verfügung. Ein Wohnzuschuss ist möglich.
Projektbeschreibung
Auf dem Areal stehen insgesamt 6 Stiegen. Alle Wohnungen sind mit großzügigen Freiflächen wie Gärten, Terrassen, Balkonen oder Loggien ausgestattet. Generell sind alle Wohnungen barrierefrei erreichbar und auch im Inneren behindertengerecht ausgeführt.Pro Wohnung werden zwei Garagenstellplätze zugeordnet. Das Kellergeschoss enthält außer der Garage die Haustechnikräume, die Kellerabteile und einen Teil der Fahrrad- und Kinderwagenabstellräume. Weitere Abstellflächen sind im Erdgeschoss situiert. Kinderspielplätze sind vorhanden.

Tolle Wohnhausanlage im Zentrum von Heiligeneich
Wohnhausanlage im Zentrum von Heiligeneich mit 6 Stiegen. Die Anlage besticht durch großzügige Grundrisse und attraktive Freiflächen. Ein rundum gelungenes Gesamtpaket.













