3-Zimmerwohnung mit großem Balkon in Heiligeneich
- Balkon / Loggia / Terrasse
| Monatl. Kosten inkl. USt | € 1.148 |
| Finanzierungsbeitrag | € 6.500 |
- Garage
- Kinderwagen/Fahrradraum
- Kontrollierte Wohnraumlüftung
- Kinderspielplatz
- Innenjalousien
- Photovoltaikanlage
- Wärmepumpe
- Fußbodenheizung
2017
ab sofort
| Garage | |
| Kinderwagen/Fahrradraum | |
| Kontrollierte Wohnraumlüftung | |
| Kinderspielplatz | |
| Innenjalousien | |
| Photovoltaikanlage | |
| Wärmepumpe | |
| Fußbodenheizung |
| Wohnzimmer | |
| Schlafzimmer | |
| Kochnische | |
| WC | |
| Badezimmer | |
| Abstellraum | |
| Vorzimmer | |
| Balkon / Loggia / Terrasse |
| Finanzierungsbeitrag | € 6.500 |
| Monatl. Kosten inkl. USt Miete inkl. Betriebskosten, exkl. Heizung und Strom | € 1.148 |
Informieren Sie sich über einen möglichen Wohnzuschuss für Ihre Immobilie.
| HWB (kWh/m²/Jahr) | 30 |
Wohnzimmer
Wohnzimmer
Kochnische
Wohnzimmer
Kochnische
Balkon
Balkon
Zimmer
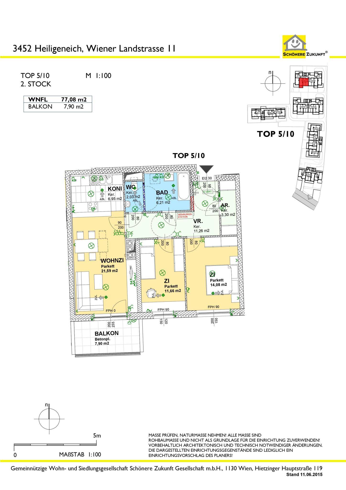
Top 5_10
Wiener Landstrasse 11/5/10, 3452 Heiligeneich
Lagebeschreibung
Die Gemeinde Heiligeneich gehört politisch zur Marktgemeinde Atzenbrugg und liegt im Städtedreieck Tulln - St. Pölten - Krems, am Rande des Tullnerfeldes. Bezirkshauptstadt ist die Rosenstadt Tulln, die Bundeshauptstadt Wien liegt nur ca. 40 km entfernt.
Immobilienbeschreibung
Die 77,08m² große 3-Zimmerwohnung befindet sich im 2. Stock des Wohnhauses 5.Sie Verfügt über einen 7,90m² großen Balkon. Der Wohnung sind zwei Garagenstellplätze sowie ein Kellerabteil zugeordnet.Ein Kinderwagen- und Fahrradabstellräume stehen allen Mietern zur freien zur Verfügung.
Projektbeschreibung
Auf dem Areal stehen insgesamt 6 Stiegen. Alle Wohnungen sind mit großzügigen Freiflächen wie Gärten, Terrassen, Balkonen oder Loggien ausgestattet. Generell sind alle Wohnungen barrierefrei erreichbar und auch im Inneren behindertengerecht ausgeführt.Pro Wohnung werden zwei Garagenstellplätze zugeordnet. Das Kellergeschoss enthält außer der Garage die Haustechnikräume, die Kellerabteile und einen Teil der Fahrrad- und Kinderwagenabstellräume. Weitere Abstellflächen sind im Erdgeschoss situiert. Kinderspielplätze sind vorhanden.

Tolle Wohnhausanlage im Zentrum von Heiligeneich
Wohnhausanlage im Zentrum von Heiligeneich mit 6 Stiegen. Die Anlage besticht durch großzügige Grundrisse und attraktive Freiflächen. Ein rundum gelungenes Gesamtpaket.









