3 Zimmerwohnung mit Loggia in Heiligeneich
- Balkon / Loggia / Terrasse
- Garage / Stellplatz
- Aufzug
| Monatl. Kosten inkl. USt | € 1.215 |
| Finanzierungsbeitrag | € 12.000 |
- Balkon / Loggia / Terrasse
- Garage / Stellplatz
- Kinderwagen/Fahrradraum
- Kellerabteil/Einlagerungsraum
- Aufzug
- Kontrollierte Wohnraumlüftung
- Photovoltaikanlage
- Innenjalousien
- Kinderspielplatz
- Notkamin
- Wärmepumpe
- Fußbodenheizung
2017
ab sofort
| Balkon / Loggia / Terrasse | |
| Garage / Stellplatz | |
| Kinderwagen/Fahrradraum | |
| Kellerabteil/Einlagerungsraum | |
| Aufzug | |
| Kontrollierte Wohnraumlüftung | |
| Photovoltaikanlage | |
| Innenjalousien | |
| Kinderspielplatz | |
| Notkamin | |
| Wärmepumpe | |
| Fußbodenheizung |
| Finanzierungsbeitrag | € 12.000 |
| Monatl. Kosten inkl. USt Miete inkl. Betriebskosten, exkl. Heizung und Strom | € 1.215 |
Informieren Sie sich über einen möglichen Wohnzuschuss für Ihre Immobilie.
| HWB (kWh/m²/Jahr) | 30 |
Loggia
Loggia
Wohnzimmer
Zimmer
Zimmer
Zimmer
Bad
Zimmer
Vorraum
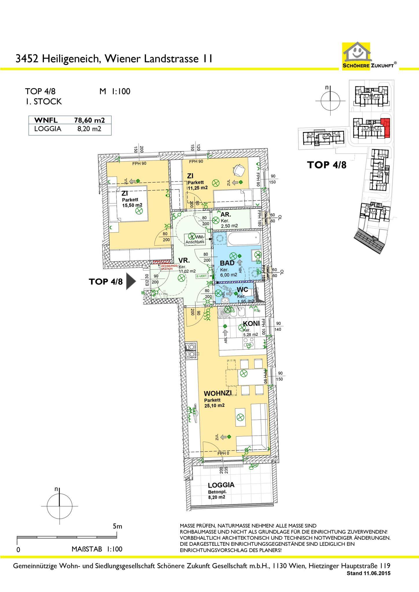
Top 4_8
Wiener Landstrasse 11/4/8, 3452 Heiligeneich
Lagebeschreibung
Die Gemeinde Heiligeneich gehört politisch zur Marktgemeinde Atzenbrugg und liegt im Städtedreieck Tulln - St. Pölten - Krems, am Rande des Tullnerfeldes. Bezirkshauptstadt ist die Rosenstadt Tulln, die Bundeshauptstadt Wien liegt nur ca. 40 km entfernt.
Immobilienbeschreibung
Die ca. 79 m² große 3-Zimmer-Wohnung befindet sich im 1. Obergeschoss der Stiege 4 und besticht durch eine funktionale Raumaufteilung und helle Wohnbereiche. Sie verfügt über eine rund 8 m² große, südlich ausgerichtete Loggia. Der Wohnung sind zwei in der Miete inkludierte Garagenstellplätze sowie ein Kellerabteil zugeordnet. Ein Kinderwagen- und Fahrradabstellraum steht allen Bewohnern zur gemeinsamen Nutzung zur Verfügung. Ein Wohnzuschuss ist möglich.
Projektbeschreibung
Auf dem Areal stehen insgesamt 6 Stiegen. Alle Wohnungen sind mit großzügigen Freiflächen wie Gärten, Terrassen, Balkonen oder Loggien ausgestattet. Generell sind alle Wohnungen barrierefrei erreichbar und auch im Inneren behindertengerecht ausgeführt.Pro Wohnung werden zwei Garagenstellplätze zugeordnet. Das Kellergeschoss enthält außer der Garage die Haustechnikräume, die Kellerabteile und einen Teil der Fahrrad- und Kinderwagenabstellräume. Weitere Abstellflächen sind im Erdgeschoss situiert. Kinderspielplätze sind vorhanden.

Moderne Wohnhausanlage im Zentrum von Heiligeneich
Wohnhausanlage im Zentrum von Heiligeneich mit 6 Stiegen. Die Anlage besticht durch großzügige Grundrisse und attraktive Freiflächen. Ein rundum gelungenes Gesamtpaket.










