attraktive Balkonwohnung in Großweikersdorf
- Aufzug
- Balkon / Loggia / Terrasse
| Monatl. Kosten inkl. USt | € 863 |
| Finanzierungsbeitrag | € 42.254 |
- Kfz-Stellplatz
- Kontrollierte Wohnraumlüftung
- Aufzug
- Elektrische Außenrollläden
- Sat-Anlage
- Photovoltaikanlage
- Notkamin
- Wärmepumpe
- Fußbodenheizung
April 2026
| Kfz-Stellplatz | |
| Kontrollierte Wohnraumlüftung | |
| Aufzug | |
| Elektrische Außenrollläden | |
| Sat-Anlage | |
| Photovoltaikanlage | |
| Notkamin | |
| Wärmepumpe | |
| Fußbodenheizung |
| Wohnküche | |
| Schlafzimmer | |
| WC | |
| Badezimmer | |
| Abstellraum | |
| Speisekammer | |
| Vorzimmer | |
| Balkon / Loggia / Terrasse | |
| Einlagerungsraum |
| Finanzierungsbeitrag | € 42.254 |
| Monatl. Kosten inkl. USt Miete inkl. Betriebskosten, exkl. Heizung und Strom | € 863 |
Informieren Sie sich über einen möglichen Wohnzuschuss für Ihre Immobilie.
| HWB (kWh/m²/Jahr) | 29.4 |
| fGEE | 0.57 |
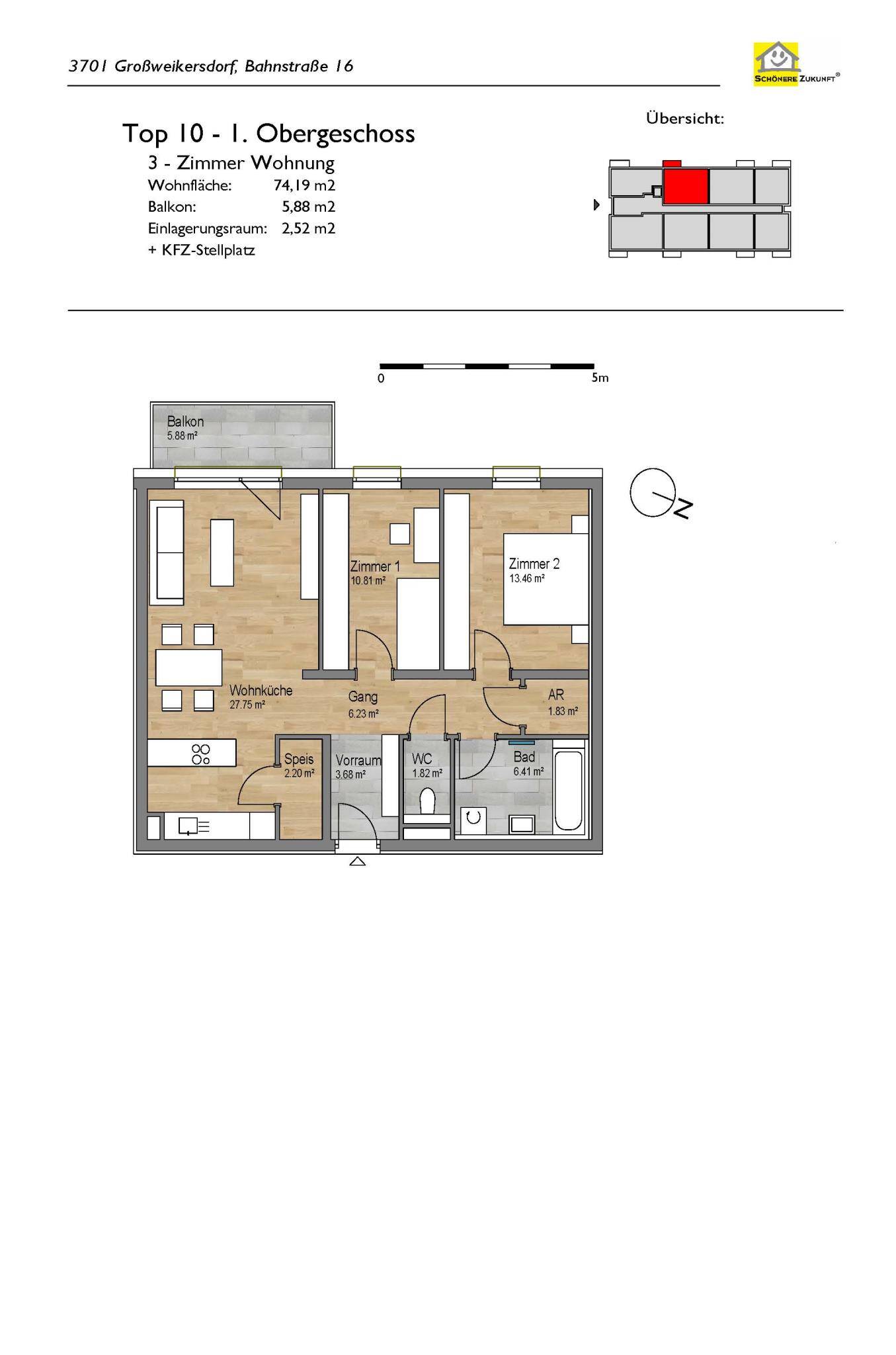
TOP10
Bahnstraße 16/10, 3701 Großweikersdorf
Lagebeschreibung
Die Gemeinde Großweikersdorf liegt im Bezirk Tulln, im westlichen Weinviertel/Niederösterreich. Die wunderschöne Landschaft lädt zu unterschiedlichsten Outdoor-Aktivitäten ein und bietet viel Raum um die Seele baumeln zu lassen. Aber nicht nur Naturliebhaber kommen auf ihre Kosten, denn Großweikersdorf punktet mit kulturellen Besonderheiten und Sehenswürdigkeiten. Darüber hinaus bietet die Gemeinde eine Fülle von Freizeitmöglichkeiten, darunter gemütliche Cafés und Restaurants.
Immobilienbeschreibung
Die Wohnung im ersten Obergeschoss ist bequem über einen Lift erreichbar. Sie verfügt über 3 Zimmer und eine Wohnfläche von 74,19 m². Sie ist mit einem 5,88 m² großen Balkon in südwestlicher Ausrichtung ausgestattet. Der Wohnung sind ein KFZ-Stellplatz und ein Einlagerungsraum zugeordnet. Kinderwagen- und Fahrradabstellplätze stehen allen Mietern zur Verfügung.
Projektbeschreibung
Großweikersdorf, Bahnstraße 16 – Moderne Wohnungen mit durchdachter Ausstattung! Das Projekt in der Bahnstraße 16 umfasst 23 moderne Wohneinheiten in Miete nmit Kaufoption und 36 PKW-Stellplätze. Das Wohnhaus gliedert sich in Erdgeschoss, Obergeschoss und Dachgeschoss. Alle Etagen sind bequem über einen Lift erreichbar. Die Wohnungen bieten Wohnflächen von 50 bis 80 m² und umfassen zwei bis vier Zimmer. Im Ober- und Dachgeschoss verfügen die Einheiten über Freiflächen wie Loggia, Balkon oder Terrasse, während die Erdgeschosswohnungen zusätzlich mit einem Garten ausgestattet sind. Jeder Wohnung ein KFZ-Stellplatz zugeordnet. Praktische Einlagerungsräume sowie Kinderwagen- und Fahrradabstellräume sind zentral im Stiegenhaus untergebracht, um den Bewohnern zusätzlichen Komfort zu bieten. Das Wohnhaus wird durch eine moderne Luft-Wasser-Wärmepumpe beheizt. Alle Wohneinheiten sind mit energieeffizienter Fußbodenheizung ausgestattet. Für ein angenehmes Raumklima sorgt eine kontrollierte Wohnraumlüftung. Änderungen Vorbehalten!

Moderne Wohnungen in Miete mit Kaufoption!
In der Bahnstraße 16 entstehen 23 moderne Mietwohnungen mit Kaufoption, 50–80 m² Wohnfläche, 2–4 Zimmern und Freiflächen. Jede Wohnung verfügt über einen KFZ-Stellplatz, Einlagerungsraum sowie energieeffiziente Ausstattung.


