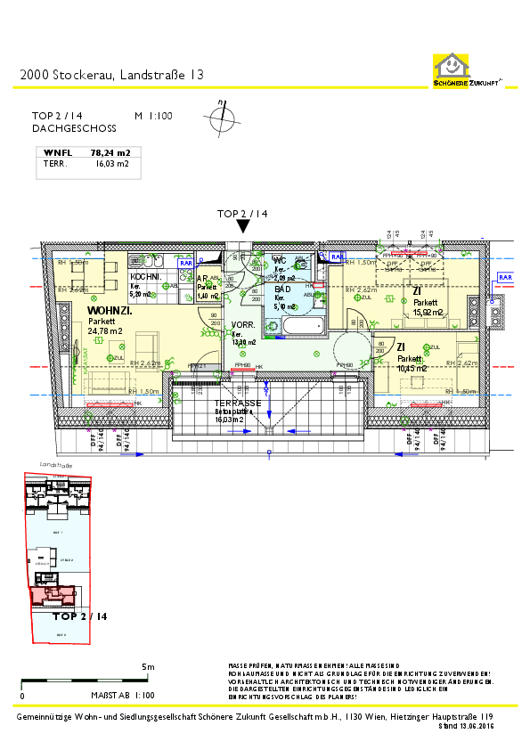
Dachgeschosswohnung in 2000 Stockerau, Landstraße 13/2/14
- Aufzug
| Monatl. Kosten inkl. USt | € 1.210 |
| Finanzierungsbeitrag | € 36.903,22 |
- Garage
- Kontrollierte Wohnraumlüftung
- Aufzug
- Kinderwagen/Fahrradraum
- Kinderspielplatz
- Notkamin
- Fernwärme
2018
Februar 2026
| Garage | |
| Kontrollierte Wohnraumlüftung | |
| Aufzug | |
| Kinderwagen/Fahrradraum | |
| Kinderspielplatz | |
| Notkamin | |
| Fernwärme |
| Finanzierungsbeitrag | € 36.903,22 |
| Monatl. Kosten inkl. USt Miete inkl. Betriebskosten, exkl. Heizung und Strom | € 1.210 |
Informieren Sie sich über einen möglichen Wohnzuschuss für Ihre Immobilie.
04.14 TOP 2_14
Landstraße 13/2/14, 2000 Stockerau
Lagebeschreibung
Stockerau liegt im Bezirk Korneuburg und ist die größte Stadt des Weinviertels. Schon allein diese Tatsache spricht für einen Lebensraum, der wenige Wünsche offenlässt. Angefangen von Bildungseinrichtungen bis hin zur ärztlichen Versorgung, bietet Stockerau eine üppige Bandbreite an Möglichkeiten. Sportlich und kulturell kommt hier jeder auf seine Kosten. Und wer ein wenig Abstand benötigt, der kann zu den umliegenden Aussichtswarten wandern und den Blick in die Ferne schweifen lassen.
Projektbeschreibung
Diese 26 geförderten Mietwohnungen mit Kaufoption bieten zwischen 57 m² und 90 m² und verfügen über 2 bis 4 Zimmer. Jede Wohnung ist mit einer eigenen Freifläche ausgestattet, sei es ein Garten mit Terrasse, Balkon oder Terrasse. Die Wohnungen erstrecken sich über 2 Stiegen, das Erdgeschoss, 1. bis 3. Obergeschoss und das Dachgeschoss. Ein Lift sorgt für einfachen Zugang zu allen Etagen. Jede Wohnung hat zudem einen Einlagerungsraum im Keller oder im Stiegenhaus. Den Bewohnern stehen außerdem ein Kinderspielplatz, ein Fahrrad- und Kinderwagenabstellraum sowie 1 Garagenstellplatz je Wohnung zur Verfügung.

Geförderte Mietwohnungen mit Kaufoption – Mit Freifläche, Garagenplatz und mehr!
Diese 26 geförderten Mietwohnungen mit Kaufoption bieten 57 bis 90 m² Wohnfläche und 2 bis 4 Zimmer. Jede Wohnung verfügt über eine Freifläche wie Garten mit Terrasse, Balkon oder Terrasse. Ein Garagenstellplatz und ein Einlagerungsraum ergänzen das Angebot. Die Wohnungen verteilen sich auf Erdgeschoss, 1. bis 3. Obergeschoss und Dachgeschoss, alle bequem mit dem Lift erreichbar.



