Entspanntes Wohnen in Eggern
- Balkon / Loggia / Terrasse
| Monatl. Kosten inkl. USt | € 655 |
| Finanzierungsbeitrag | € 5.036,24 |
- Balkon / Loggia / Terrasse
- Gas-Kombi-Thermen
2005
Mai 2026
| Balkon / Loggia / Terrasse | |
| Gas-Kombi-Thermen |
| Finanzierungsbeitrag | € 5.036,24 |
| Monatl. Kosten inkl. USt Miete inkl. Betriebskosten, exkl. Heizung und Strom | € 655 |
Informieren Sie sich über einen möglichen Wohnzuschuss für Ihre Immobilie.
| HWB (kWh/m²/Jahr) | 72.88 |
GR
Pengersstraße 14/4, 3861 Eggern
Lagebeschreibung
Im Bezirk Gmünd im nördlichen Waldviertel liegt die Marktgemeinde Eggern mit ca. 750 Einwohnern. Durch seine sanfte Hügellandschaft, Mischwälder, überdimensionale Granitformationen sowie zahlreiche Teiche gehört das Gebiet zu einer der reizvollsten Landschaften in Niederösterreich. Neben Einkaufsmöglichkeiten für den täglichen Bedarf, Kindergarten und Volksschule, bietet die Gemeinde auch etliche Freizeit- und Erholungsangebote u. a. einen Badeteich, zwei Tennisplätze, Rad- und Wanderwege u.v.m.
Projektbeschreibung
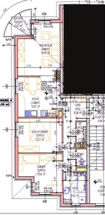
Die Anlage besteht insgesamt aus 3 Bauabschnitten. Haus 3 ist von der Landstraße erschlossen und beinhaltet 6 Wohnungen mit Balkonen und Terrassen, verteilt auf einem Erdgeschoss und einem Obergeschoss. Jeder Einheit sind ein KFZ-Abstellplatz und ein Kellerabteil zugeordnet. In den Kellergeschossen befindet sich ein Trockenraum und im Stiegenhaus ein Kinderwagen- und Fahrradabstellraum.

Entspanntes Wohnen in Eggern
Wohnhaus mit 6 Mietwohnungen und großzügigen Freiflächen zum Wohlfühlen.



