Erstbezug nächst Tulln mit 3 Zimmern und Balkon
- Aufzug
 - Balkon / Loggia / Terrasse
 
| Monatl. Kosten inkl. USt | € 932 | 
| Finanzierungsbeitrag | € 18.500 | 
- Kfz-Stellplatz
 - Kontrollierte Wohnraumlüftung
 - Aufzug
 - Elektrische Außenrollläden
 - Sat-Anlage
 - Photovoltaikanlage
 - Notkamin
 - Wärmepumpe
 - Fußbodenheizung
 
2025
ab sofort
| Kfz-Stellplatz | |
| Kontrollierte Wohnraumlüftung | |
| Aufzug | |
| Elektrische Außenrollläden | |
| Sat-Anlage | |
| Photovoltaikanlage | |
| Notkamin | |
| Wärmepumpe | |
| Fußbodenheizung | 
| Wohnküche | |
| Schlafzimmer | |
| WC | |
| Badezimmer | |
| Balkon / Loggia / Terrasse | |
| Einlagerungsraum | 
| Finanzierungsbeitrag | € 18.500 | 
|  Monatl. Kosten inkl. USt Miete inkl. Betriebskosten, exkl. Heizung und Strom  | € 932 | 
Informieren Sie sich über einen möglichen Wohnzuschuss für Ihre Immobilie.
| HWB (kWh/m²/Jahr) | 25.9 | 
| fGEE | 0.75 | 
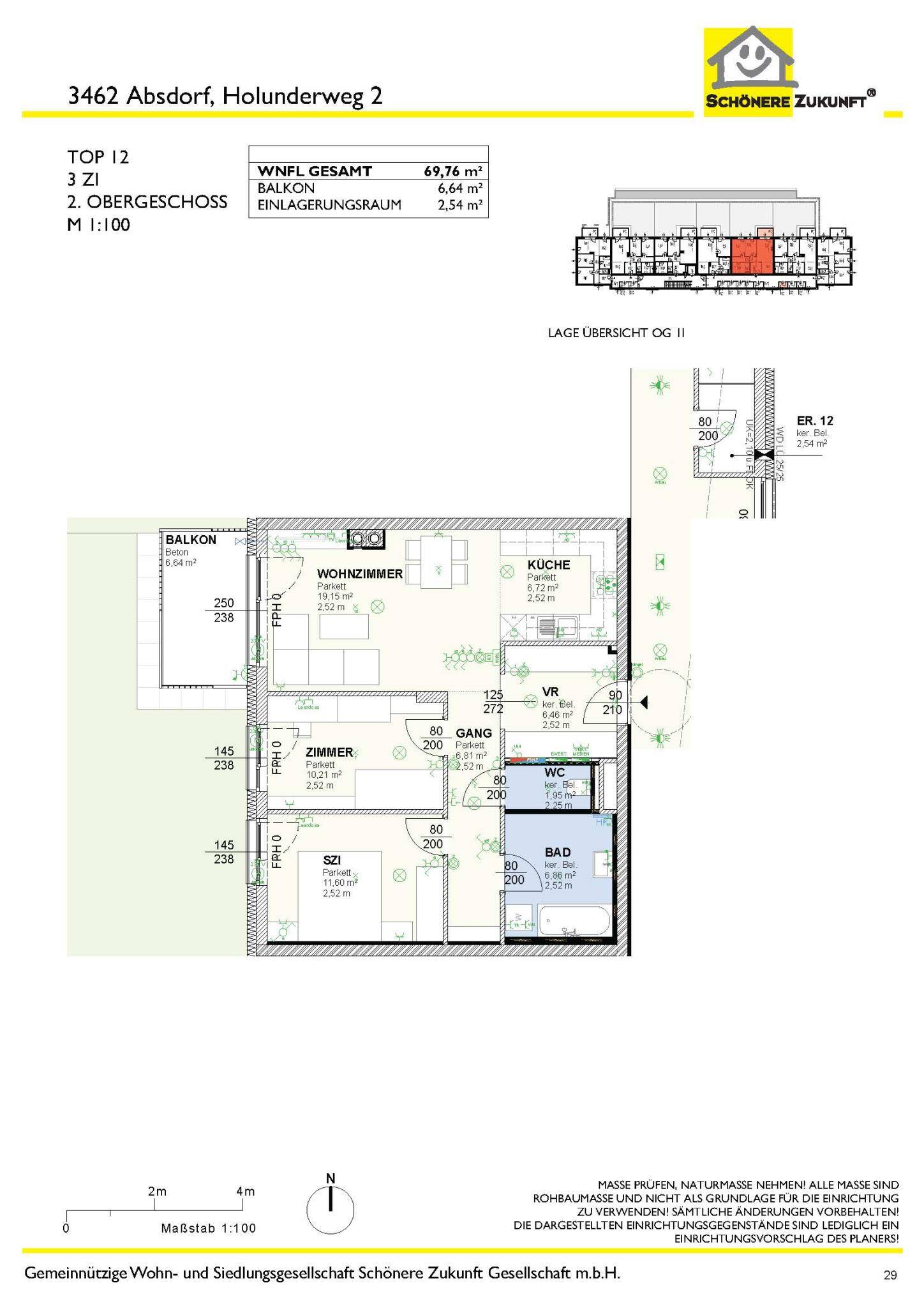
Top12
Holunderweg 2/12, 3462 Absdorf
Lagebeschreibung
Die Gemeinde Absdorf liegt im Tullnerfeld, im nördlichen Niederösterreich. Die wunderschöne Landschaft lädt zu ausgedehnten Spaziergängen ein und bietet viel Raum, um die Seele baumeln zu lassen. Aber nicht nur Naturliebhaber kommen auf ihre Kosten. Absdorf besticht neben der Kellergasse, auch noch viele andere Sehenswürdigkeiten. Langweilig wird es den neuen Mieterinnen und Mietern also sicher nicht.Egal ob zu Fuß oder mit dem Fahrrad, die schöne Gemeinde im Weinviertel, lädt zu den unterschiedlichsten Outdoor-Aktivitäten ein. Trotz der guten Infrastruktur kann man hier die Ruhe und die vielen Vorteile des ländlichen Lebensraumes in vollen Zügen genießen.
Immobilienbeschreibung
Die Wohnung befindet sich im 2. OG und ist über einen Aufzug erreichbar. Sie besteht aus 3 Zimmern, bei einer Wohnfläche von 69,76 m² und verfügt über einen 6,64 m² großen Balkon. Der Wohnung sind ein Einlagerungsraum im Stiegenhaus, sowie 2 KFZ-Stellplätze zugeteilt. Ein Kinderwagen- und mehrere Fahrradabstellplätze stehen allen Mietern zur Verfügung und befinden sich im Erdgeschoss .
Projektbeschreibung
Auf dem Grundstück in Absdorf, Holunderweg 2 wurden 17 Wohneinheiten sowie ein Kindergarten errichtet. Jede der 2-3-Zimmer-Wohnungen verfügt über westlich ausgerichtete Freiflächen. Die Wohnungen im ersten Obergeschoss erhielten eine Terrasse und einen Dachgarten, die Wohnungen im 2. Obergeschoss und im Dachgeschoss verfügen über einen Balkon oder eine Dachterrasse.

Neue Mitwohnungen mit Kaufoption in Absdorf
Geförderte Mietwohnungen mit Kaufoption in Absdorf. 2 bis 3 Zimmer mit großzügigen Freiflächen.




