Gartenwohnung in 3701 Großweikersdorf, Badweg 26
- Garten
- Aufzug
| Monatl. Kosten inkl. USt | € 650 | 
| Finanzierungsbeitrag | € 16.967,64 | 
- Terrasse
- Garten
- Garage
- Kinderwagen/Fahrradraum
- Kinderwagenraum
- Fahrradabstellplätze
- Kellerabteil/Einlagerungsraum
- Aufzug
- Innenjalousien
- Sat-Anlage
- Photovoltaikanlage
- Notkamin
- Wärmepumpe
- Fußbodenheizung
2020
Mai 2026
| Terrasse | |
| Garten | |
| Garage | |
| Kinderwagen/Fahrradraum | |
| Kinderwagenraum | |
| Fahrradabstellplätze | |
| Kellerabteil/Einlagerungsraum | |
| Aufzug | |
| Innenjalousien | |
| Sat-Anlage | |
| Photovoltaikanlage | |
| Notkamin | |
| Wärmepumpe | |
| Fußbodenheizung | 
| Finanzierungsbeitrag | € 16.967,64 | 
| Monatl. Kosten inkl. USt Miete inkl. Betriebskosten, exkl. Heizung und Strom | € 650 | 
Informieren Sie sich über einen möglichen Wohnzuschuss für Ihre Immobilie.
| HWB (kWh/m²/Jahr) | 26.4 | 
| fGEE | 0.74 | 
GWD 3 VERGABE_13_P01
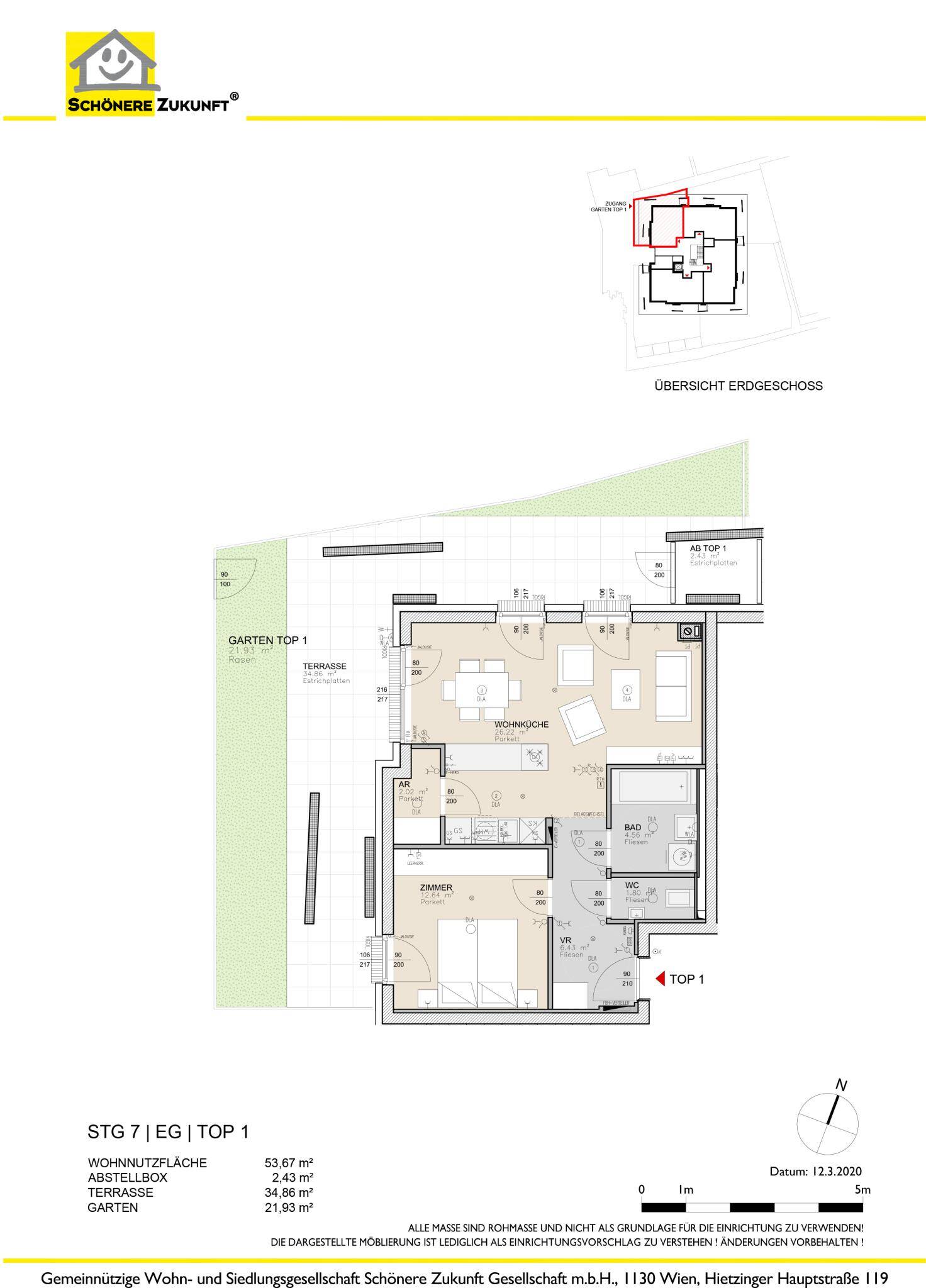
Badweg 26/7/1, 3701 Großweikersdorf
Lagebeschreibung
Das Grundstück liegt zentrumsnah in der Marktgemeinde Groß Weikersdorf, im Nordosten begrenztdurch die Bundesstraße B4 und im Südwesten durch die Schmida. Auf dem langgestreckten Grundstückwerden zwei unterschiedliche Baukörper errichtet mit insgesamt 23 Wohneinheiten.
Projektbeschreibung
Hinter dem Garagengebäude wird ein Punkthaus in Niedrigenergiebauweise mit 17 Wohnungen errichtet. Die Erschließung erfolgtüber die Wohnstraße. Die interne Erschließung erfolgt barrierefrei über ein zentrales Stiegenhaus mitAufzug das über ein Oberlicht natürlich belichtet wird. Ein Kinderwagenraum befindet sich imErdgeschoß, die Fahrradabstellplätze in eigenen Fahrradboxen. Die Größe der Wohnungen bewegtsich zwischen 52 und 84 m², es werden 2-, 3- und 4-Zimmer-Wohnungen errichtet. Den Wohnungenim EG sind Eigengärten mit Terrassen vorgelagert, die Wohnungen in den Geschossen 1. – 3.OG sindmit Balkonen ausgestattet. Fast alle Wohnungen sind als Eckwohnungen geplant, die Belichtung kannvon zwei Seiten erfolgen.

Modernes Wohnen in Großweikersdorf
17 Mietwohnungen mit Kaufoption zwischen 52 und 84 m². Jeder Wohnung sind ein Einlagerungsraum und ein KFZ-Abstellplatz zugeordnet.










