Geförderte 4-Zimmer-Wohnung in 2301 Groß-Enzersdorf, Kirchenplatz 7
| Monatl. Kosten inkl. USt | € 1.365 |
| Finanzierungsbeitrag | € 48.825 |
2019
April 2026
03.4.7 2_7
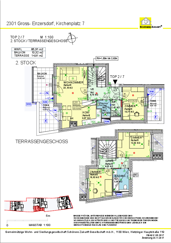
Kirchenplatz 7/2/7, 2301 Groß-Enzersdorf
Lagebeschreibung
Im Bezirk Gänserndorf und an Wien angrenzend, präsentiert sich Groß-Enzersdorf als lebenswerte Gemeinde. Durch die umliegende Au-Landschaft bietet sich ein großes Freizeitangebot und vielen Entspannungsmöglichkeiten. Das Kunst- und Kulturangebot steht dem sportlichen Programm um nichts nach und lädt zu spannenden Streifzügen ein.
Immobilienbeschreibung
Die 3-Zimmerwohnung befindet sich im 2. Obergeschoss der Stiege 2. Sie hat eine Wohnfläche von ca. 86 m² und verfügt über ca. 18 m² Terrassen/Balkonfläche in Westlicher Richtung und ca. 7 m² Terrassenfläche in östlicher Ausrichtung. Der Wohnung sind ein Kellerabteil sowie zwei Garagenstellplätze zugeordnet. Ein Kinderwagen- und Fahrradraum sowie ein Kinderspielplatz stehen allen Mietern zur freien zur Verfügung.Heizung:Die Wohneinheiten werden mittels Fernwärme beheizt - Die Wärmeabgabe erfolgt über eine Fußbodenheizung. Ein Notkamin ist vorhanden.
Projektbeschreibung
Die Wohnhausanlage besteht aus 3 Baukörpern mit insgesamt 22 geförderten Mietwohnungen und 44 Tiefgaragenplätzen.Die Wohnungen sind west-ost-orientiert, barrierefrei erreichbar und verfügen alle über Freiflächen (Terrasse, Balkon, Loggia oder Eigengarten). Beheizt werden die Einheiten mittels Fernwärme. Eine kontrollierte Wohnraumlüftung sorgt für ein angenehmes Raumklima und der Anschluss für einen Kamin ist vorhanden. Durch den Lift sind alle Wohnungen barrierefrei erreichbar.

Gut ausgestattete Mietwohnungen zum Wohlfühlen
Die Wohnhausanlage besteht aus 3 Baukörpern mit insgesamt 22 geförderten Mietwohnungen und 44 Tiefgaragenplätzen.





