Geförderte 4-Zimmer-Wohnung in 3033 Altlengbach, Prinzbachstraße 2
- Aufzug
- Balkon / Loggia / Terrasse
| Monatl. Kosten inkl. USt | € 1.072 |
| Finanzierungsbeitrag | € 32.500 |
- Loggia
- Garage
- Jalousien
- Kinderwagen/Fahrradraum
- Kontrollierte Wohnraumlüftung
- Kinderspielplatz
- Aufzug
- Photovoltaikanlage
- Notkamin
- Wärmepumpe
- Fußbodenheizung
2016
Januar 2026
| Loggia | |
| Garage | |
| Jalousien | |
| Kinderwagen/Fahrradraum | |
| Kontrollierte Wohnraumlüftung | |
| Kinderspielplatz | |
| Aufzug | |
| Photovoltaikanlage | |
| Notkamin | |
| Wärmepumpe | |
| Fußbodenheizung |
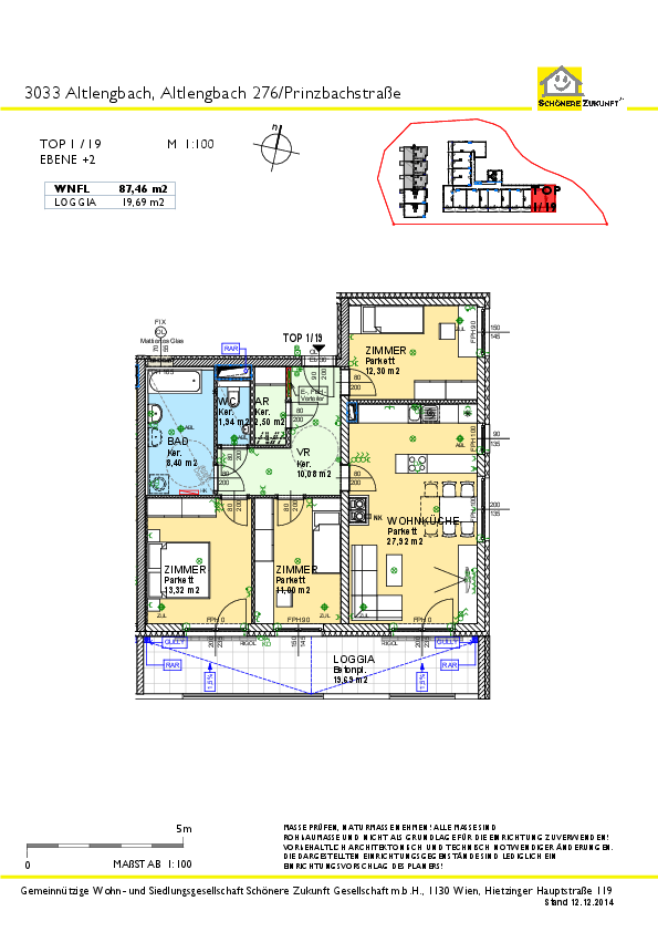
| Wohnküche | |
| Schlafzimmer | |
| WC | |
| Badezimmer | |
| Abstellraum | |
| Vorzimmer | |
| Balkon / Loggia / Terrasse |
| Finanzierungsbeitrag | € 32.500 |
| Monatl. Kosten inkl. USt Miete inkl. Betriebskosten, exkl. Heizung und Strom | € 1.072 |
Informieren Sie sich über einen möglichen Wohnzuschuss für Ihre Immobilie.
| HWB (kWh/m²/Jahr) | 24.3 |
| fGEE | 0.63 |
WHA (1)
WHA (5)
WHA (2)
WHA (4)
WHA (6)
19 (4)
19 (2)
19 (3)
19 (1)
19 (5)
TOP 1_19
Prinzbachstraße 2/1/19, 3033 Altlengbach
Lagebeschreibung
Die Gemeinde Altlengbach liegt im Wienerwald, im westlichen Niederösterreich. Die wunderschöne Landschaft lädt zu unterschiedlichsten Outdoor-Aktivitäten ein und bietet viel Raum, um die Seele baumeln zu lassen. Aber nicht nur Naturliebhaber kommen auf ihre Kosten, denn Altlengbach punktet mit kulturellen Besonderheiten und spannenden Sehenswürdigkeiten. Langweilig wird es den neuen Mieterinnen und Mietern also sicher nicht.
Projektbeschreibung
Die Anlage umfasst 24 Mietwohnungen und 5 Reihenhäuser Die Anlage umfasst 24 Mietwohnungen und 5 Reihenhäuser mit Kaufoption in der Nähe des Ortszentrums von Altlengbach. Es wurden 2 bis 4 Zimmer-Wohnungen in der Größe von ca. 58 m² bis 87 m² errichtet. Die Reihenhäuser haben eine Nutzfläche von ca. 104 m². Alle Erdgeschoss-Wohnungen haben einen Eigengarten, alle Wohnungen in den Obergeschossen verfügen über eine Loggia, eine Terrasse oder einen Balkon. Zu jeder Wohnung bzw. Reihenhaus ist ein Kfz-Garagenplatz sowie ein Kellerabteil zugehörig.

Mietwohnungen und Reihenhäuser unweit von Wien
Unweit von Wien liegt diese schöne Anlage mit 24 Mietwohnungen und 5 Reihenhäusern. Die 2 bis 4 Zimmerwohnungen mit attraktiven Freiflächen und die 2-geschossigen Häuser sind perfekt angeordnet und sorgen für ein lichtdurchflutetes Zuhause.











