Große Maisonettewohnung direkt in St. Pölten
- Aufzug
- Balkon / Loggia / Terrasse
| Monatl. Kosten inkl. USt | € 1.511 |
| Finanzierungsbeitrag | € 36.349,17 |
- Garage
- Kontrollierte Wohnraumlüftung
- Aufzug
- Maisonette
- Fahrradabstellplätze
- Photovoltaikanlage
- Notkamin
- Wärmepumpe
- Fußbodenheizung
2016
ab sofort
| Garage | |
| Kontrollierte Wohnraumlüftung | |
| Aufzug | |
| Maisonette | |
| Fahrradabstellplätze | |
| Photovoltaikanlage | |
| Notkamin | |
| Wärmepumpe | |
| Fußbodenheizung |
| Wohnzimmer | |
| Schlafzimmer | |
| Kochnische | |
| WC | |
| Badezimmer mit WC | |
| Abstellraum | |
| Balkon / Loggia / Terrasse | |
| Kellerraum |
| Finanzierungsbeitrag | € 36.349,17 |
| Monatl. Kosten inkl. USt Miete inkl. Betriebskosten, exkl. Heizung und Strom | € 1.511 |
Informieren Sie sich über einen möglichen Wohnzuschuss für Ihre Immobilie.
| HWB (kWh/m²/Jahr) | 19.3 |
| fGEE | 0.64 |
2_11 (1)
2_11 (6)
2_11 (2)
2_11 (3)
2_11 (4)
2_11 (8)
2_11 (7)
2_11 (9)
2_11 (10)
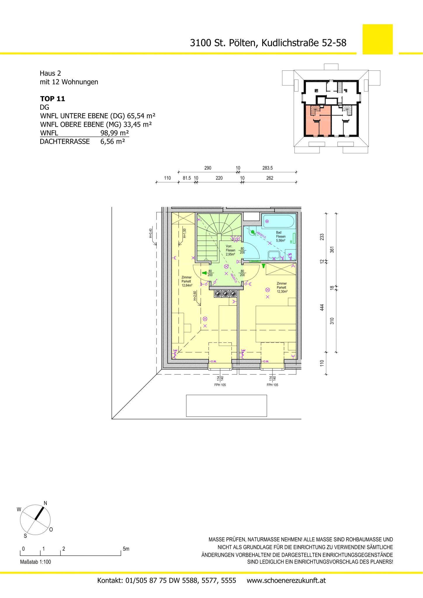
Stiege 2, Top 11 Obere Ebene - MG
Stiege 2, Top 11 Untere Ebene - DG
Kudlichstrasse 56/2/11, 3100 St. Pölten
Lagebeschreibung
Wer kennt St. Pölten nicht?! Die niederösterreichische Landeshauptstadt bietet alles was das Herz begehrt. Eine gut ausgebaute Infrastruktur, die unterscheidlichsten Bildungseinrichtungen, Geschäfte des täglichen Bedarfs und natürlich auch gemütliche Ecken zum Zurückziehen. Sowohl kulturell als auch kulinarisch kann man aus dem Vollen schöpfen. Zudem bietet St. Pölten viele Möglichkeiten sich in Parkanlagen oder in umliegenden Naherholungsgebieten zu entspannen.
Projektbeschreibung
Es wurden 12 geförderte Mietwohnungen mit Kaufoption sowie 14 Garagenplätze errichtet. Das Projekt besteht aus vier freistehenden Häusern, die im Untergeschoss mit einer Tiefgarage verbunden sind. Die Errichtung erfolgt in einzelnen Bauabschnitten, beginnend bei Haus 1 an der Ecke Kudlichstraße und Bozener Straße, welches im Sommer 2013 bezogen wurde. Die Häuser 2 (im August 2016 fertig gestellt) und 3 werden jeweils zwölf Wohnungen enthalten und das vierte, um einen Stock niedrigere Haus, wird zehn Wohnungen umfassen. Alle Erdgeschoss-Wohnungen haben einen Eigengarten, alle Wohnungen in den Obergeschossen verfügen über eine Terrasse oder einen Balkon. Zu jeder Wohnung ist ein Kfz-Garagenplatz sowie ein Kellerabteil zugehörig. Die Wohnhausanlage wird mit einer kontrollierten Wohnraumlüftung, einer Luft-Wasser-Wärmepumpe und einem SAT-Anschluss ausgestattet.

Geförderte Mietwohnungen mit Kaufoption in St. Pölten
Neuwertige Wohnhausanlage mit insgesamt 12 Mietwohnungen mit Kaufoption in der Landeshauptstadt.











