Großzügig geschnittene 2-Zimmerwohnung mit Balkon
- Aufzug
- Balkon / Loggia / Terrasse
| Monatl. Kosten inkl. USt | € 850 |
| Finanzierungsbeitrag | € 5.000 |
- Garage
- Kinderwagen/Fahrradraum
- Kellerabteil/Einlagerungsraum
- Kinderspielplatz
- Aufzug
- Wandzuluftelemente
- Innenjalousien
- Sat-Anlage
- Notkamin
- Fußbodenheizung
- Fernwärme
2021
ab sofort
| Garage | |
| Kinderwagen/Fahrradraum | |
| Kellerabteil/Einlagerungsraum | |
| Kinderspielplatz | |
| Aufzug | |
| Wandzuluftelemente | |
| Innenjalousien | |
| Sat-Anlage | |
| Notkamin | |
| Fußbodenheizung | |
| Fernwärme |
| Wohnküche | |
| Schlafzimmer | |
| WC | |
| Badezimmer | |
| Vorzimmer | |
| Balkon / Loggia / Terrasse | |
| Kellerraum |
| Finanzierungsbeitrag | € 5.000 |
| Monatl. Kosten inkl. USt Miete inkl. Betriebskosten, exkl. Heizung und Strom | € 850 |
Informieren Sie sich über einen möglichen Wohnzuschuss für Ihre Immobilie.
| HWB (kWh/m²/Jahr) | 24.1 |
Wohnzimmer
Zimmer
Wohnzimmer
Bad
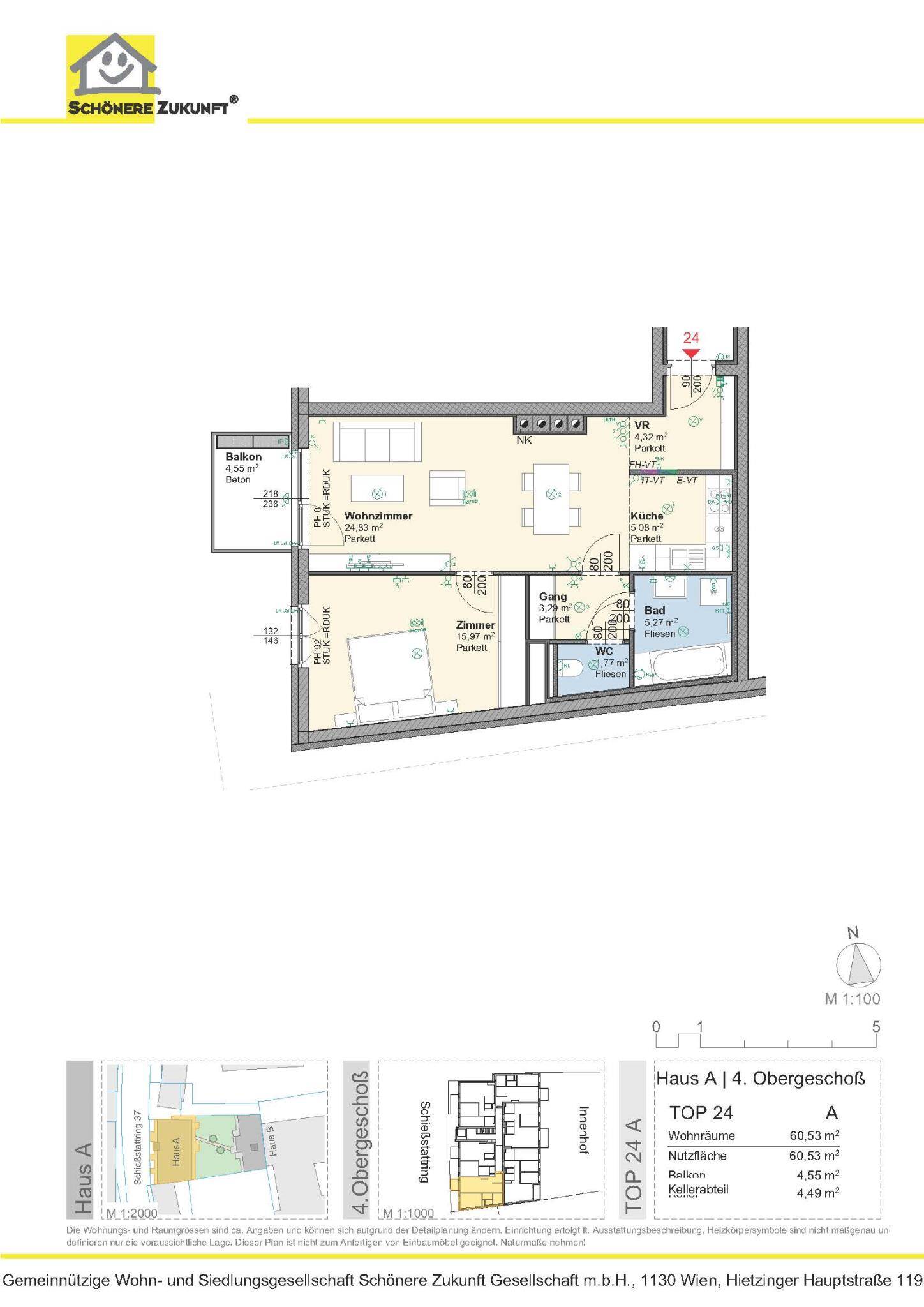
A_24
Schießstattring 37/A/24, 3100 St. Pölten
Lagebeschreibung
Wer kennt St. Pölten nicht?! Die niederösterreichische Landeshauptstadt bietet alles was das Herz begehrt. Eine gut ausgebaute Infrastruktur, die unterscheidlichsten Bildungseinrichtungen, Geschäfte des täglichen Bedarfs und natürlich auch gemütliche Ecken zum Zurückziehen. Sowohl kulturell als auch kulinarisch kann man aus dem Vollen schöpfen. Zudem bietet St. Pölten viele Möglichkeiten sich in Parkanlagen oder in umliegenden Naherholungsgebieten zu entspannen.
Immobilienbeschreibung
Die Wohnung befindet sich im 4. Obergeschoss der Stiege A und besteht aus 2 Zimmern auf einer Wohnfläche von 60,53m².Sie verfügt über einen westlich ausgerichteten Balkon mit einer Größe von 4,55m².Jeder Wohnung ist ein Einlagerungsraum im Kellergeschoss, sowie ein Tiefgaragenstellplatz zugeteilt.Ein Kinderwagen/Fahrradabstellraum, ein Spielraum und ein Kinderspielplatz im Innenhof stehen allen Mietern zur freien Verfügung.
Projektbeschreibung
Auf dem Grundstück in der Zentrumszone von St. Pölten wurde eine Wohnhausanlage bestehend aus zwei Wohngebäuden (Haus A und Haus B) mit insgesamt 48 Wohnungen errichtet. Die zwei Wohngebäude bestehen aus insgesamt 6 Geschossen. Jede Wohnung im Haus A hat einen Balkon bzw. eine Loggia in östlicher bzw. westlicher Richtung. Die Wohnungen im Haus B besitzen Balkone in westlicher Richtung. Dachgeschoß-Wohnungen umfassen Terrassen und Balkone. Unter dem gesamten Grundstück wurde eine zweigeschossige Tiefgarage für insgesamt 70 PKW-Stellplätze errichtet. In jedem Geschoss befinden sich ein barrierefreier Parkplatz und einer für Familien.Sämtliche Abstellräume für die Mieter befinden sich in den Kellergeschossen.

Wohnhausanlage im Zentrum von St. Pölten
Schöne Wohnhausanlage mit guter Infrastruktur im Zentrum von St. Pölten bestehend aus 2 Wohngebäuden.





