Helle 2-Zimmer-Wohnung mit Terrasse, Balkon und Kaufoption
- Aufzug
- Balkon / Loggia / Terrasse
| Monatl. Kosten inkl. USt | € 1.042 |
| Finanzierungsbeitrag | € 10.000 |
- Garage
- Kontrollierte Wohnraumlüftung
- Aufzug
- Kinderwagen/Fahrradraum
- Kinderspielplatz
- Notkamin
- Fernwärme
2018
ab sofort
| Garage | |
| Kontrollierte Wohnraumlüftung | |
| Aufzug | |
| Kinderwagen/Fahrradraum | |
| Kinderspielplatz | |
| Notkamin | |
| Fernwärme |
| Wohnküche | |
| Schlafzimmer | |
| WC | |
| Badezimmer | |
| Abstellraum | |
| Schrankraum | |
| Balkon / Loggia / Terrasse |
| Finanzierungsbeitrag | € 10.000 |
| Monatl. Kosten inkl. USt Miete inkl. Betriebskosten, exkl. Heizung und Strom | € 1.042 |
Informieren Sie sich über einen möglichen Wohnzuschuss für Ihre Immobilie.
Balkon
Balkon
Wohnzimmer
Zimmer
Balkon
Zimmer
Balkon
DSC02260
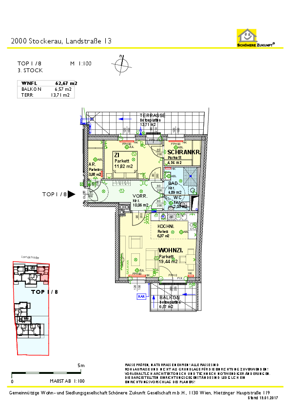
1_8
Landstraße 13/1/8, 2000 Stockerau
Lagebeschreibung
Stockerau liegt im Bezirk Korneuburg und ist die größte Stadt des Weinviertels. Schon allein diese Tatsache spricht für einen Lebensraum, der wenige Wünsche offenlässt. Angefangen von Bildungseinrichtungen bis hin zur ärztlichen Versorgung, bietet Stockerau eine üppige Bandbreite an Möglichkeiten. Sportlich und kulturell kommt hier jeder auf seine Kosten. Und wer ein wenig Abstand benötigt, der kann zu den umliegenden Aussichtswarten wandern und den Blick in die Ferne schweifen lassen.
Immobilienbeschreibung
Diese helle 2-Zimmer-Wohnung im 3. Obergeschoss bietet eine Nutzfläche von 62,67 m² und ist zur Miete mit Kaufoption verfügbar. Sie verfügt über eine nordseitige Terrasse mit 13,71 m² und einen südseitigen Balkon mit 6,57 m², die viel Platz im Freien bieten. Ein Kellerabteil und ein Garagenstellplatz gehören ebenfalls zur Wohnung. Die Wohnung ist bequem über einen Lift erreichbar und bietet modernen Wohnkomfort in attraktiver Lage.
Projektbeschreibung
Diese 26 geförderten Mietwohnungen mit Kaufoption bieten zwischen 57 m² und 90 m² und verfügen über 2 bis 4 Zimmer. Jede Wohnung ist mit einer eigenen Freifläche ausgestattet, sei es ein Garten mit Terrasse, Balkon oder Terrasse. Die Wohnungen erstrecken sich über 2 Stiegen, das Erdgeschoss, 1. bis 3. Obergeschoss und das Dachgeschoss. Ein Lift sorgt für einfachen Zugang zu allen Etagen. Jede Wohnung hat zudem einen Einlagerungsraum im Keller oder im Stiegenhaus. Den Bewohnern stehen außerdem ein Kinderspielplatz, ein Fahrrad- und Kinderwagenabstellraum sowie 1 Garagenstellplatz je Wohnung zur Verfügung.

Geförderte Mietwohnungen mit Kaufoption – Mit Freifläche, Garagenplatz und mehr!
Diese 26 geförderten Mietwohnungen mit Kaufoption bieten 57 bis 90 m² Wohnfläche und 2 bis 4 Zimmer. Jede Wohnung verfügt über eine Freifläche wie Garten mit Terrasse, Balkon oder Terrasse. Ein Garagenstellplatz und ein Einlagerungsraum ergänzen das Angebot. Die Wohnungen verteilen sich auf Erdgeschoss, 1. bis 3. Obergeschoss und Dachgeschoss, alle bequem mit dem Lift erreichbar.

