Reihenhaus im Grünen
- Balkon / Loggia / Terrasse
- Garten
| Monatl. Kosten inkl. USt | € 1.480 |
| Finanzierungsbeitrag | € 7.000 |
- Kfz-Abstellplatz im Freien
- Kinderwagen/Fahrradraum
- Kellerabteil/Einlagerungsraum
- Photovoltaikanlage
- Kontrollierte Wohnraumlüftung
- Innenjalousien
- Sat-Anlage
- Notkamin
- Wärmepumpe
- Fußbodenheizung
- X
2018
April 2026
| Kfz-Abstellplatz im Freien | |
| Kinderwagen/Fahrradraum | |
| Kellerabteil/Einlagerungsraum | |
| Photovoltaikanlage | |
| Kontrollierte Wohnraumlüftung | |
| Innenjalousien | |
| Sat-Anlage | |
| Notkamin | |
| Wärmepumpe | |
| Fußbodenheizung | |
| X |
| Wohnküche | |
| Schlafzimmer | |
| WC | |
| Badezimmer mit WC | |
| Abstellraum | |
| Schrankraum | |
| Vorzimmer | |
| Vorplatz | |
| Balkon / Loggia / Terrasse | |
| Zugang | |
| Garten |
| Finanzierungsbeitrag | € 7.000 |
| Monatl. Kosten inkl. USt Miete inkl. Betriebskosten, exkl. Heizung und Strom | € 1.480 |
Informieren Sie sich über einen möglichen Wohnzuschuss für Ihre Immobilie.
| HWB (kWh/m²/Jahr) | 21.9 |
| fGEE | 0.71 |
WZ
WZ
Stiegenaufgang
SZ
Zimmer
SZ
SZ
RH 2, EG
RH 2, OG
Nr. 347/2, 2063 Zwingendorf
Lagebeschreibung
Das Planungsgrundstück befindet sich in Zwingendorf, nördlich der Gemeinde Grossharras in Niederösterreich. Es liegt im Norden einer Wohnhaussiedlung und wird im Süden von einem Naturschutzgebiet mit einem Teich begrenzt. Großharras liegt im nördlichen Weinviertel in Niederösterreich im Hügelland südlich der Pulkau etwa auf halbem Weg zwischen Laa an der Thaya und Haugsdorf.
Immobilienbeschreibung
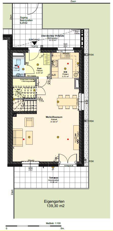
Das Reihenhaus befindet sich in der Gemeinde Großharras Nähe Laa/Thaya. Es verfügt über eine Wohnfläche von 104,42 m² mit 4 Zimmern, eine Terrasse mit 13,06 m² und einem Eigengarten mit 139,30 m².Das Haus unterteilt sich in einen Vorraum, ein WC und eine große Wohnküche mit Zugang zu Terrasse und Garten im Erdgeschoss - und 3 Schlafzimmer (eines mit Schrankraum), ein Badezimmer mit Badewanne, WC und Fenster im Obergeschoss. Dem Reihenhaus sind zwei KFZ-Stellplätze zugeteilt.Die Wohneinheiten werden über Luft-Wasser-Wärmepumpenanlagen mit Wärme versorgt.Die Wärmeabgabe erfolgt über eine Fußbodenheizung.
Projektbeschreibung
In Zwingendorf wurden 8 Mietwohnungen mit 2 bis 4 Zimmern und 12 KFZ-Stellplätze im Freinen errichtet. Die Wohnnutzflächen liegen zwischen 51 und 104 m². Beheizt werden die Wohnungen über eine Wärmepumpe, die Wärmeabgabe erfolgt über eine Fußbodenheizung. Eine kontrollierte Wohnraumlüftung sorgt für ein behagliches und gesundes Raumklima. Der Strom der Photovoltaikanlage kann für die Wärmepumpe verwendet werden.

Reihenhäuser und Wohnungen mit Kaufoption in Zwingendorf
In Zwingendorf wurden 8 Mietwohnungen mit 2 bis 4 Zimmern und 12 KFZ-Stellplätze im Freinen errichtet. Jede Einheit verfügt über eine Terrasse mit Eigengarten im Erdgeschoss oder einem Balkon/einer Terrasse in den oberen Geschossen.







