Wohnen in Spillern, Stockerauerstraße 20
| Monatl. Kosten inkl. USt | € 1.165 |
| Finanzierungsbeitrag | € 30.459,62 |
- Kinderwagen/Fahrradraum
- Kellerabteil/Einlagerungsraum
- Notkamin
- Fernwärme
2018
April 2026
| Kinderwagen/Fahrradraum | |
| Kellerabteil/Einlagerungsraum | |
| Notkamin | |
| Fernwärme |
| Finanzierungsbeitrag | € 30.459,62 |
| Monatl. Kosten inkl. USt Miete inkl. Betriebskosten, exkl. Heizung und Strom | € 1.165 |
Informieren Sie sich über einen möglichen Wohnzuschuss für Ihre Immobilie.
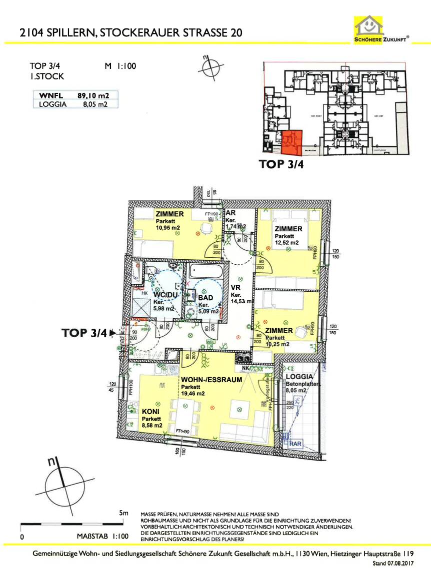
Planskizze_20_3_4
Stockerauer Straße 20/3/4, 2104 Spillern
Lagebeschreibung
Stockerau liegt im Bezirk Korneuburg und ist die größte Stadt des Weinviertels. Schon allein diese Tatsache spricht für einen Lebensraum, der wenige Wünsche offenlässt. Angefangen von Bildungseinrichtungen bis hin zur ärztlichen Versorgung, bietet Stockerau eine üppige Bandbreite an Möglichkeiten. Sportlich und kulturell kommt hier jeder auf seine Kosten. Und wer ein wenig Abstand benötigt, der kann zu den umliegenden Aussichtswarten wandern und den Blick in die Ferne schweifen lassen.
Projektbeschreibung
Das Wohnprojekt bietet modernen Wohnkomfort mit 40 Wohnungen und 80 Tiefgaragenplätzen in einer ruhigen und gut erreichbaren Lage. Jede Wohnung verfügt über eine Freifläche, entweder eine Loggia, einen Balkon oder eine Terrasse. Wohnungen im Erdgeschoss haben zusätzlich einen eigenen Garten. Zu jeder Wohnung gehören fix zwei Tiefgaragenplätze. Die Wohnanlage erstreckt sich über das Erdgeschoss sowie das 1. und 2. Obergeschoss und wird über zwei Aufzüge erschlossen. Die Wohnungen sind süd-, west- oder ostseitig ausgerichtet, und wo möglich, werden Endwohnungen so gestaltet, dass eine Querlüftung ermöglicht wird. Die Stiegen 1 und 2 bieten 32 Neubauwohnungen, während die Stiege 3 im Rahmen eines Sanierungsprojekts, „Eckstein“, 8 barrierefreie Wohnungen umfasst. Die Stiegenhäuser sind aus Brandschutzgründen „gekapselt“ ausgeführt, und die Kinderspielplätze wurden bewusst in einer geschützten Lage abseits der Stockerauer Straße angelegt. Zwei zentrale Müllräume sind direkt an den Gehsteig angebunden. Da die Stiege 3 nicht unterkellert ist, werden die Kellerabteile durch Einlagerungsräume in den jeweiligen Geschossen ersetzt. Für die restlichen Stiegen wird eine ähnliche Lösung oberhalb des Erdgeschosses umgesetzt. Die Anordnung der Wohnungen um zwei geschützte Innenhöfe erhöht das Sicherheitsgefühl und trägt so zum Wohlbefinden der Bewohner bei.

Wohnen in Spillern, Stockerauerstraße 20
Das Wohnprojekt bietet 40 moderne Wohnungen mit Freiflächen (Loggia, Balkon oder Terrasse) und 80 Tiefgaragenplätzen. Jede Wohnung hat zwei Tiefgaragenplätze, und Erdgeschosswohnungen verfügen über einen Eigengarten. Es gibt zwei Lifte, barrierefreie Wohnungen in Stiege 3 und Kinderspielplätze in geschützter Lage. Sicherheitsmerkmale umfassen „gekapselte“ Stiegenhäuser und Innenhöfe.







