Wohnhaus mit 25 Wohneinheiten in Toplage
| Monatl. Kosten inkl. USt | € 1.025 |
| Finanzierungsbeitrag | € 12.000 |
2016
September 2026
1_21
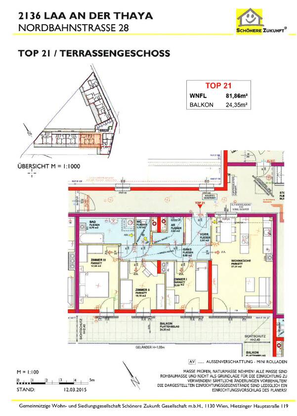
Nordbahnstrasse 28/1/21, 2136 Laa an der Thaya
Lagebeschreibung
Laa an der Thaya liegt im nördlichen Weinviertel, unmittelbar an der Grenze zu Tschechien. Die Gemeinde hat sich zum Zentrum des nördlichen Weinviertels entwickelt und liegt nahe der wunderschönen Thaya. Kulturell und geschichtlich lädt Laa zu spannenden Erkundungstouren ein und auch die Therem zieht über das Jahr verteilt viele Besucher an. Wer die Natur liebt, kann die Gegend auf unzähligen Wanderwegen erkunden. Wer die Vorzüge einer gut ausgebauten Infrastruktur schätzt, wird hier ebenso fündig. Laa an der Thaya hat für jeden etwas zu bieten.
Projektbeschreibung
Gebaut wurde ein Wohnhaus bestehend aus 25 Wohneinheiten mit 2 bis 4 Zimmern mit Größen von 54 m² bis 91m². Im Stiegenhaus ist ein behindertengerechter Aufzug vorhanden. Das Gebäude wird nicht unterkellert. Jeder Wohneinheit ist im Hof ein Stellplatz zugeordnet. Die Grünflächen im Hof werden als Kinderspielplatzflächen ausgewiesen. Alle Wohnungen erhalten Terrassen, Eigengärten, Balkone oder Loggien. Das Gebäude wurde als Niedrigenergiehaus ausgeführt und entsprechend wärmegedämmt.

Wohnhaus mit 25 Wohneinheiten in Toplage
Wohnhausanlage in guter Lage mit 25 Wohneinheiten und 2 bis 4-Zimmerwohnungen. Jede Einheit verfügt über eine Freifläche und einen Stellplatz.




