Projektbeschreibung
Die Wohnhausanlage mit insgesamt 54 Wohnungen aufgeteilt auf 12 Stiegen befindet sich in Ternitz-Rohrbach.Jede Wohnung verfügt über einen Balkon, ein Kellerabteil sowie einen KFZ-Abstellplatz.(Garage od. Abstellplatz im Freien). Zwischen Stiege 9 und 10 befindet sich ein Kinderspielplatz. Die Wohneinheiten werden über eine Gaszentralheizung beheizt.
Spielplatz
Außenfoto
Außenfoto
Spielplatz
Schaukel
Außenanlage
Außenfoto
Wohnhausanlage
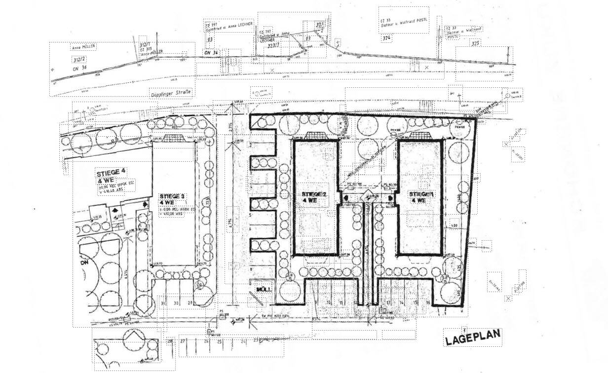
Lageplan
Döpplingerstrasse 35-45, 2630 Ternitz
Lagebeschreibung
Die wunderschöne Gemeinde Ternitz liegt im Bezirk Neunkirchen, im unteren Schwarzatal. Der Ort besticht durch idyllisch Ausflugsziele und bekannte Sehenswürdigkeiten, wie die Burg Stixenstein und die Ruine Dunkelstein. Natürlich findet sich nicht nur ein Angebot für sportliche und kulturinteressierte. Ternitz bietet eine gut ausgebaute Infrastruktur, gemütlich Einkehrmöglichkeiten und viele Rückzugsorte um die Seele baumeln zu lassen.









