Fertigstellung
April 2021
Mieten und Kaufen
1 Wohnung
Größe und Zimmer

74.38 m2

1 Wohnung zum Mieten
Änderungen vorbehalten
Top 10
74,38 m2
2.OG
  • Balkon / Loggia / Terrasse
  • Aufzug
Miete mit Kaufoption
€ 655

Projektbeschreibung

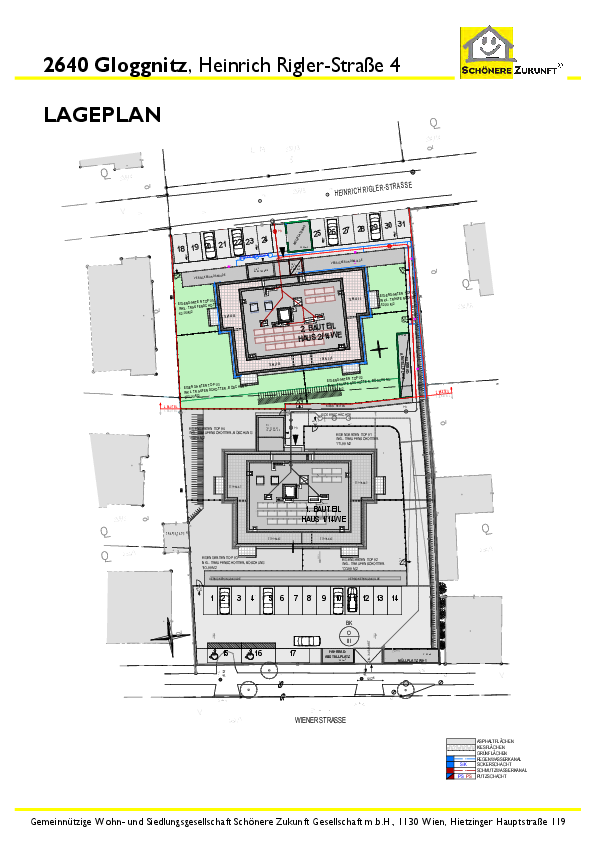
Auf dem Grundstück zwischen der Heinrich Rigler-Straße im Norden und der Wiener Straße im Süden, wurden 2 Wohnhäuser mit je 14 Wohneinheiten (gesamt 28 Wohneinheiten) und zugehörigen Außenanlagen errichtet.Das Wohnhaus besteht aus Erdgeschoß, 1. und 2. Obergeschoß sowie Dachgeschoß und ist nicht unterkellert. Die Wohnungen haben zwischen 55 und 83m² und 2-2 Zimmer. Jede Wohnung verfügt über großzügige Freiflächen in Form von Balkon, Terrasse oder einem Eigengarten.Ein behindertengerechter Aufzug im Stiegenhaus ist vorgesehen.Die Parteienkeller/Abstellräume befinden sich im Stiegenhaus.Die Nebenräume (Fahrrad, KiWa, Haustechnikraum) befinden sich im Eingangsbereich der Wohnhäuser.Ein zusätzlicher überdachter Fahrradabstellplatz befindet sich im Bereich der Stellplätze.Die erforderlichen Stellplätze wurden im Bereich der Heinrich Rigler-Straße an der nördlichen Grundgrenze angeordnet.Die Gebäude werden als Niedrigenergiehäuser ausgeführt. Die Beheizung erfolgt mittels Wärmepumpen, die Wärmeabgabe über eine Fußbodenheizung.

Weitere Information

Downloads und weiterführende Links im Überblick