Projektbeschreibung
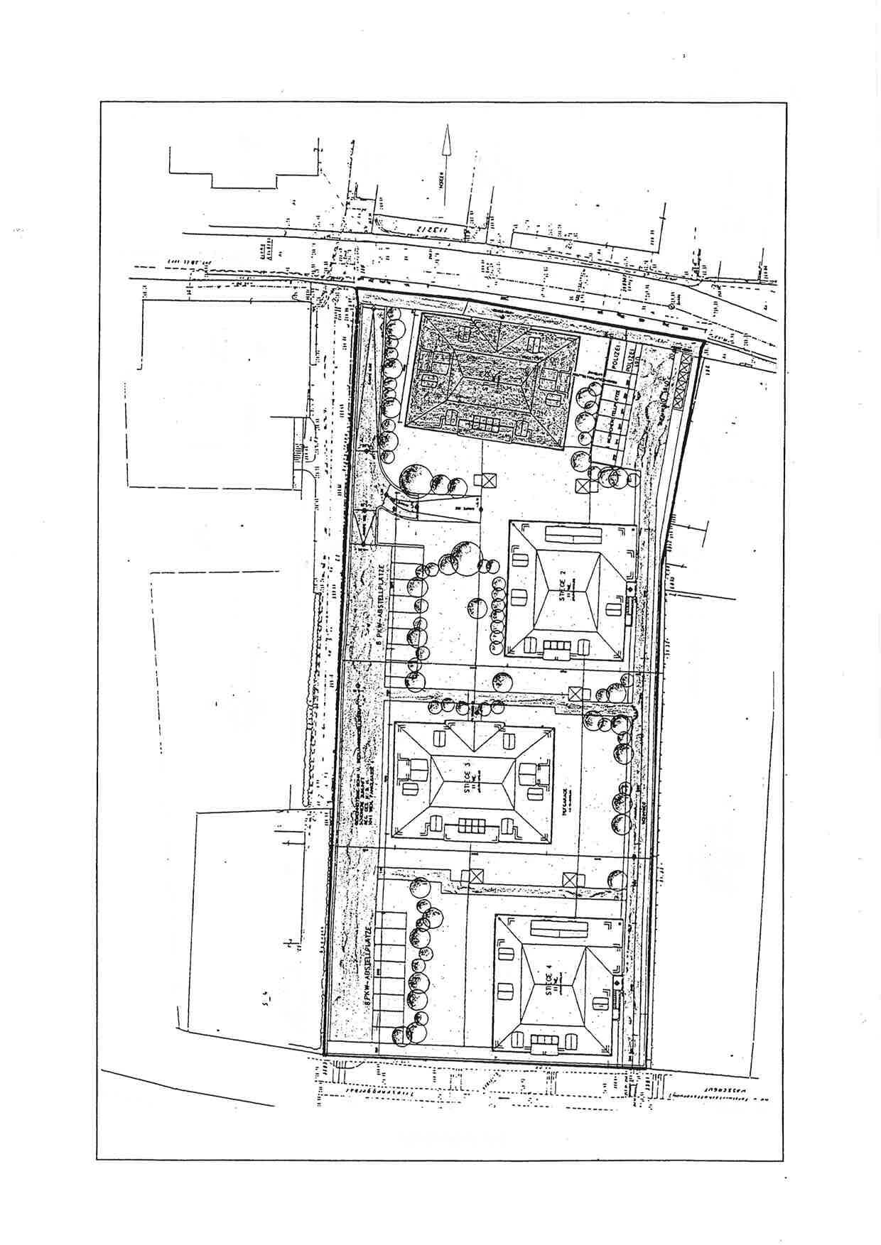
Die Wohnanlage in St. Georgen am Ybbsfelde, Bachweg 1-3/Marktstraße 18, bietet 41 Mietwohnungen, von denen einige mit einer Kaufoption verfügbar sind. Die Wohnungen verteilen sich auf vier Stiegen und bieten Wohnkomfort für unterschiedliche Bedürfnisse. Zu jeder Wohnung gehört ein eigenes Kellerabteil, das praktischen Stauraum bietet. Für die Bewohner stehen insgesamt 46 KFZ-Stellplätze zur Verfügung, wobei jedem Wohnungsnutzer ein Stellplatz zugeordnet ist.
Bachweg 3_Stiege 4
Bachweg 1 _ Stg 2
Bachweg 1_Stg. 2
Bachweg 3 _ Stiege 4
Lageplan
Lageplan2
Bachweg 1-3, Marktstr. 18, 3304 St. Georgen am Ybbsfelde
Lagebeschreibung
Im Herzen des Mostviertels gelegen, eingebettet in die sanfte Landschaft des Alpenvorlandes bietet St. Georgen am Ybbsfelde viele kulturelle Veranstaltungen und Möglichkeiten ausgedenhnte Wanderungen zu unternehmen. Auch kulinarisch hat die idyllische Gemeinde einiges zu bieten. Durch die Nähe zu Amstetten ergeben sich kurze Wege und viele Möglichkeiten, seinen Lieblingsbeschäftigungen nachzugehen.






