Projektbeschreibung
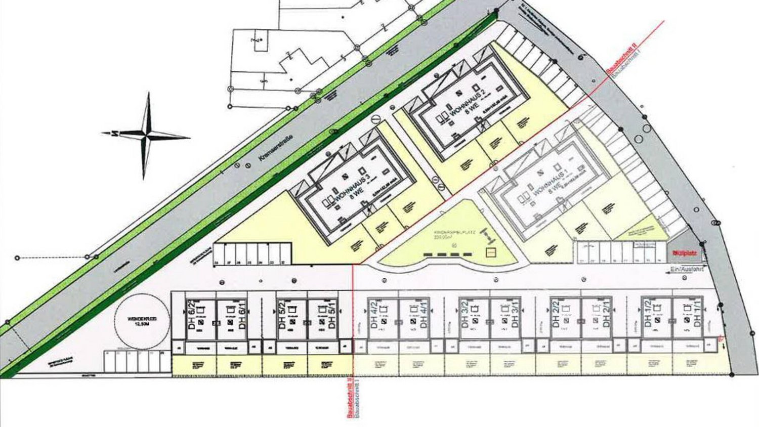
Auf dem Grundstück werden im zweiten Bauabschnitt in offener Bebauungsweise 2 Wohnhäuser mit je 8 Wohneinheiten und 4 Doppelhaushälften errichtet.Die nicht unterkellerten Wohnhäuser bestehen aus Erdgeschoss, Obergeschoss und zurückgesetztem Terrassengeschoss.Jede Wohnung verfügt über einen Abstellraum der über Terrasse/Loggia erreichbar ist.Die Nebenräume (Technik Raum, Trockenraum, Kinderwagenabstellraum) sind vor dem Wohnhaus angeschlossen.2 überdachte Fahrradabstellplätze befinden sich ebenfalls vor dem Wohnhaus.Die Erdgeschosswohnungen erhalten Eigengärten mit Terrassen, die oberen Wohnungen Loggien oder Terrassen entsprechend der Plandarstellung.Die Doppelhäuser bestehen aus Erdgeschoss und Obergeschoss. Jede Doppelhaushälfte verfügt über einen Zugang/eine Abstellfläche, einen Abstellraum, sowie einen Eigengarten mit Terrasse.
20181108_Absdorf_screen_50_edited
© Johannes Brunnbauer
20181108_Absdorf_screen_52_edited
© Johannes Brunnbauer
FACR9019
© Johannes Brunnbauer
CSPR5205_edited
© Johannes Brunnbauer
NWAU4692_edited
© Johannes Brunnbauer
NZMA0788_edited
© Johannes Brunnbauer
lage wohnhäuser
Kremserstraße 89, Stg 2+3, H 9-12, 3462 Absdorf
Lagebeschreibung
Die Gemeinde Absdorf liegt im Tullnerfeld, im nördlichen Niederösterreich. Die wunderschöne Landschaft lädt zu ausgedehnten Spaziergängen ein und bietet viel Raum, um die Seele baumeln zu lassen. Aber nicht nur Naturliebhaber kommen auf ihre Kosten. Absdorf besticht neben der Kellergasse, auch noch viele andere Sehenswürdigkeiten. Langweilig wird es den neuen Mieterinnen und Mietern also sicher nicht.Egal ob zu Fuß oder mit dem Fahrrad, die schöne Gemeinde im Weinviertel, lädt zu den unterschiedlichsten Outdoor-Aktivitäten ein. Trotz der guten Infrastruktur kann man hier die Ruhe und die vielen Vorteile des ländlichen Lebensraumes in vollen Zügen genießen.







