- Aufzug
- Balkon / Loggia / Terrasse
- Garten
- Aufzug
- Balkon / Loggia / Terrasse
- Aufzug
- Balkon / Loggia / Terrasse
- Aufzug
- Balkon / Loggia / Terrasse
- Aufzug
- Balkon / Loggia / Terrasse
- Aufzug
- Balkon / Loggia / Terrasse
- Aufzug
- Balkon / Loggia / Terrasse
- Aufzug
- Balkon / Loggia / Terrasse
- Aufzug
- Aufzug
- Balkon / Loggia / Terrasse
Projektbeschreibung
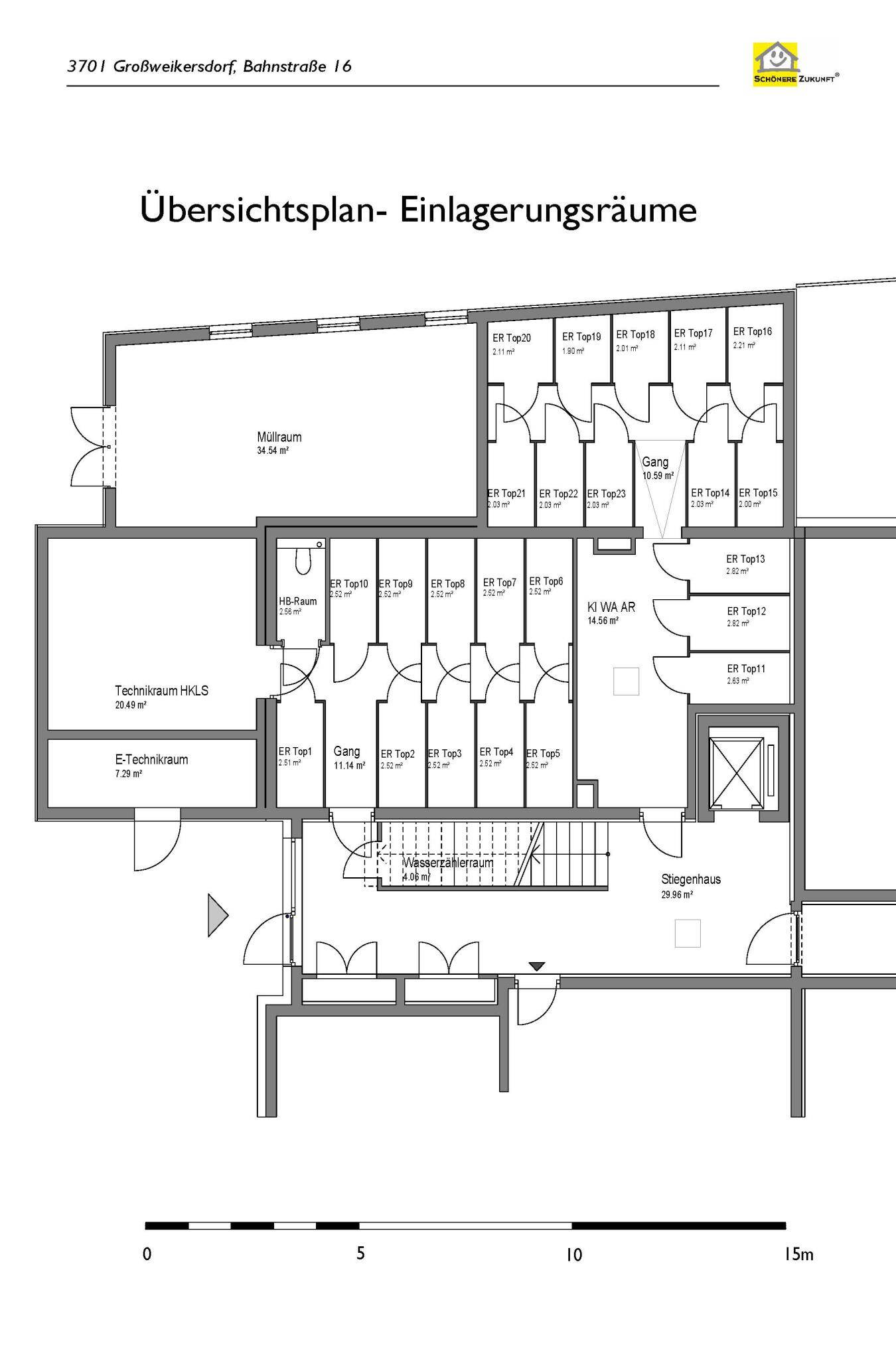
Großweikersdorf, Bahnstraße 16 – Moderne Wohnungen mit durchdachter Ausstattung! Das Projekt in der Bahnstraße 16 umfasst 23 moderne Wohneinheiten in Miete nmit Kaufoption und 36 PKW-Stellplätze. Das Wohnhaus gliedert sich in Erdgeschoss, Obergeschoss und Dachgeschoss. Alle Etagen sind bequem über einen Lift erreichbar. Die Wohnungen bieten Wohnflächen von 50 bis 80 m² und umfassen zwei bis vier Zimmer. Im Ober- und Dachgeschoss verfügen die Einheiten über Freiflächen wie Loggia, Balkon oder Terrasse, während die Erdgeschosswohnungen zusätzlich mit einem Garten ausgestattet sind. Jeder Wohnung ein KFZ-Stellplatz zugeordnet. Praktische Einlagerungsräume sowie Kinderwagen- und Fahrradabstellräume sind zentral im Stiegenhaus untergebracht, um den Bewohnern zusätzlichen Komfort zu bieten. Das Wohnhaus wird durch eine moderne Luft-Wasser-Wärmepumpe beheizt. Alle Wohneinheiten sind mit energieeffizienter Fußbodenheizung ausgestattet. Für ein angenehmes Raumklima sorgt eine kontrollierte Wohnraumlüftung. Änderungen Vorbehalten!
(c)2023 ZOOMVP_Schoenere Zukunft Grossweikersdorf_c03 (Groß)
(c)2023 ZOOMVP_Schoenere Zukunft Grossweikersdorf_c01 (Groß)
Verkauf Großweikersdorf 09_2024_103_Seite_04
Verkauf Großweikersdorf 09_2024_103_Seite_05
Bahnstraße 16, 3701 Großweikersdorf
Lagebeschreibung
Die Gemeinde Großweikersdorf liegt im Bezirk Tulln, im westlichen Weinviertel/Niederösterreich. Die wunderschöne Landschaft lädt zu unterschiedlichsten Outdoor-Aktivitäten ein und bietet viel Raum um die Seele baumeln zu lassen. Aber nicht nur Naturliebhaber kommen auf ihre Kosten, denn Großweikersdorf punktet mit kulturellen Besonderheiten und Sehenswürdigkeiten. Darüber hinaus bietet die Gemeinde eine Fülle von Freizeitmöglichkeiten, darunter gemütliche Cafés und Restaurants.




