Projektbeschreibung
Hinter dem Garagengebäude wird ein Punkthaus in Niedrigenergiebauweise mit 17 Wohnungen errichtet. Die Erschließung erfolgtüber die Wohnstraße. Die interne Erschließung erfolgt barrierefrei über ein zentrales Stiegenhaus mitAufzug das über ein Oberlicht natürlich belichtet wird. Ein Kinderwagenraum befindet sich imErdgeschoß, die Fahrradabstellplätze in eigenen Fahrradboxen. Die Größe der Wohnungen bewegtsich zwischen 52 und 84 m², es werden 2-, 3- und 4-Zimmer-Wohnungen errichtet. Den Wohnungenim EG sind Eigengärten mit Terrassen vorgelagert, die Wohnungen in den Geschossen 1. – 3.OG sindmit Balkonen ausgestattet. Fast alle Wohnungen sind als Eckwohnungen geplant, die Belichtung kannvon zwei Seiten erfolgen.
20201118_Grossweikersdorf_Badweg_screen_13
20201118_Grossweikersdorf_Badweg_screen_14
20201118_Grossweikersdorf_Badweg_screen_15
20201118_Grossweikersdorf_Badweg_screen_16
20201118_Grossweikersdorf_Badweg_screen_23
20201118_Grossweikersdorf_Badweg_screen_19
20201118_Grossweikersdorf_Badweg_screen_25
20201118_Grossweikersdorf_Badweg_screen_26
20201118_Grossweikersdorf_Badweg_screen_31
20201118_Grossweikersdorf_Badweg_screen_36
GWD 3 VERGABE_01_Lage
GWD 3 VERGABE_02_Ü Gesamt
GWD 3 VERGABE_03b_Ü Parken
GWD 3 VERGABE_05_Ü OG1
GWD 3 VERGABE_06_Ü OG2
GWD 3 VERGABE_04_Ü EG
Badweg 26, Stg. 6+7, 3701 Großweikersdorf
Lagebeschreibung
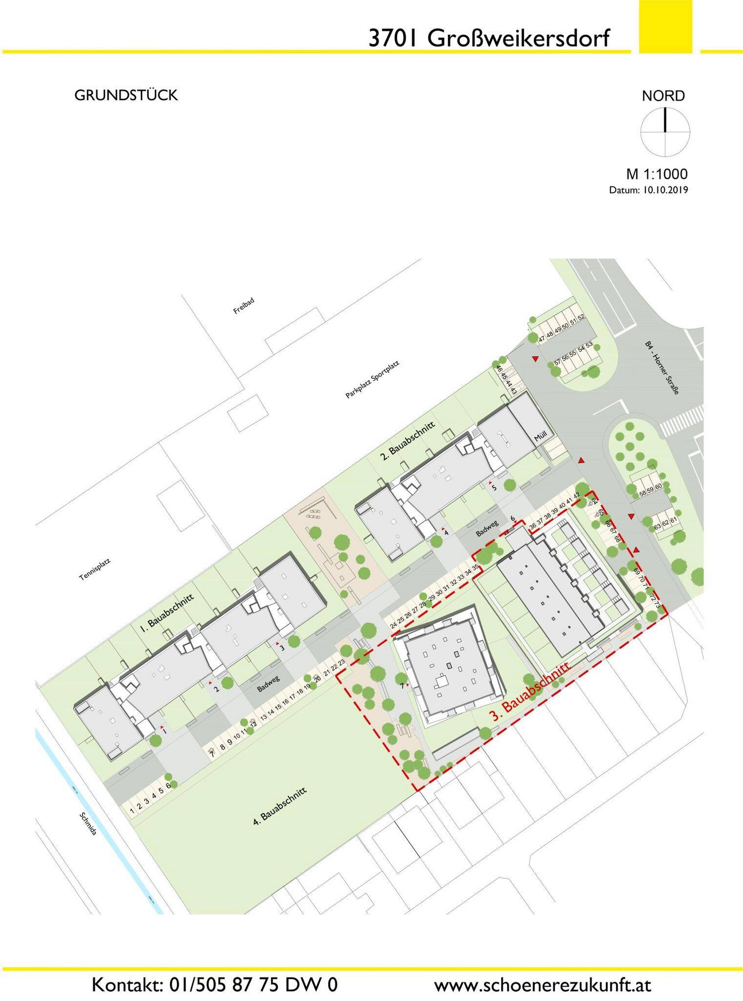
Das Grundstück liegt zentrumsnah in der Marktgemeinde Groß Weikersdorf, im Nordosten begrenztdurch die Bundesstraße B4 und im Südwesten durch die Schmida. Auf dem langgestreckten Grundstückwerden zwei unterschiedliche Baukörper errichtet mit insgesamt 23 Wohneinheiten.
















