Projektbeschreibung
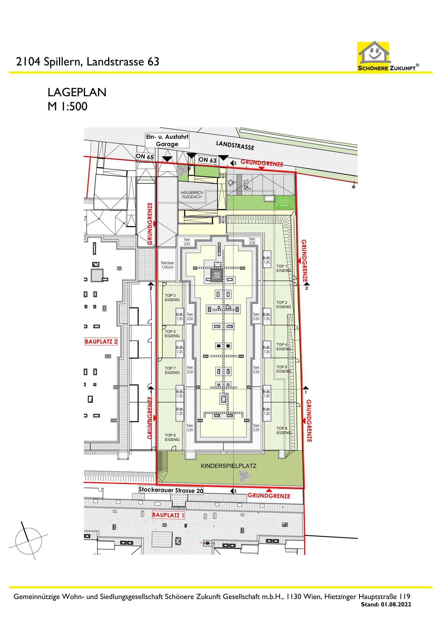
In Spillern erwartet Sie eine moderne, dreigeschossige Wohnhausanlage mit insgesamt 27 Wohneinheiten. Die Wohnungen sind zwischen 55 m² und 83 m² groß und bieten 2 bis 4 Zimmer, ideal für unterschiedliche Wohnbedürfnisse. Jede Einheit verfügt über eine private Freifläche wie einen Garten, eine Terrasse oder einen Balkon, die zusätzlichen Wohnkomfort im Freien ermöglichen. Jeder Wohnung stehen außerdem ein Kellerabteil sowie zwei Garagenstellplätze zur Verfügung. Alle Etagen sind bequem über einen Lift erreichbar. Für zusätzlichen Komfort sorgen ein großzügiger Kinderspielplatz sowie gemeinschaftlich nutzbare Bereiche wie ein Fahrrad- und ein Kinderwagenabstellraum. Die Beheizung erfolgt nachhaltig mittels Fernwärme, die Wärme wird über eine komfortable Fußbodenheizung abgegeben. Hochwertige Ausstattungsdetails wie Eichenparkett, großformatige Fliesen (30x60 cm), Kunststofffenster mit 3-Scheiben-Schutzverglasung, elektrische Außenrollläden sowie eine kontrollierte Wohnraumlüftung sorgen für ein angenehmes Wohnklima. Ein Notkamin rundet das Ausstattungspaket ab.
Landstraße 63 (1)
Landstraße 63 (2)
Landstraße 63 (3)
Landstraße 63 (4)
Landstraße 63 (5)
Landstraße 63 (6)
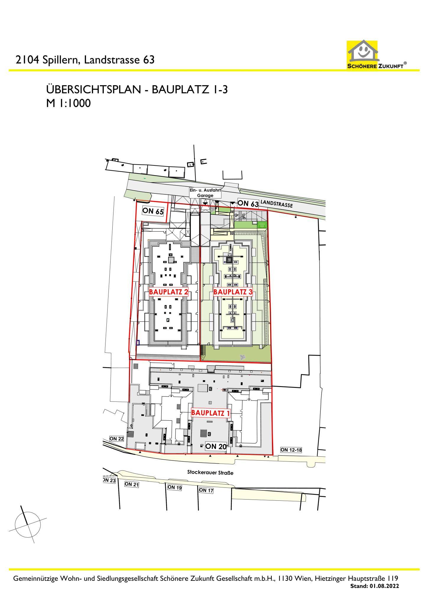
05 Lageplan-001
08 Lageplan BT 1-3-001
09 Lageplan-001
Landstraße 63, 2104 Spillern
Lagebeschreibung
Spillern liegt im Weinviertel zwischen Korneuburg und Stockerau. Die Marktgmeinde ist ein beliebtes Ausflugsziel und ein perfekter Ausganspunkt für Wanderungen. Auch Radfahrern bieten sich viele Möglichkeiten ihren Sport auszuüben, während sich Golfer in der 18-Loch-Golfanlage austoben können. Die gut ausgebaute Infrastruktur ermöglicht es das Auto in der Garage zu lassen und auf die öffentlichen Verkehrsmittel zurückzugreifen.









