Projektbeschreibung
Seniorenwohnhaus! Das Wohnprojekt in der Ziehrergasse 12 in Zistersdorf umfasst 10 Wohnungen mit 50-55 m² und jeweils 2 Zimmer. Jede Wohnung verfügt über eine Terrasse oder einen Balkon. Die Wohnungen sind mit Fernwärme und einer Wärmepumpe beheizt und bieten eine kontrollierte Wohnraumlüftung. Ein Aufzug sorgt für barrierefreien Zugang. Zudem stehen Fahrrad- und Kinderwagenabstellräume sowie ein Wasch- und Trockenraum zur Verfügung. Jede Wohnung hat einen Stellplatz im Freien, und das Gebäude ist nicht unterkellert, jedoch mit einem Kellerabteil ausgestattet.
Außenansicht Ziehrergasse 12
Außenansicht Ziehrergasse 12
Außenansicht Ziehrergasse 12
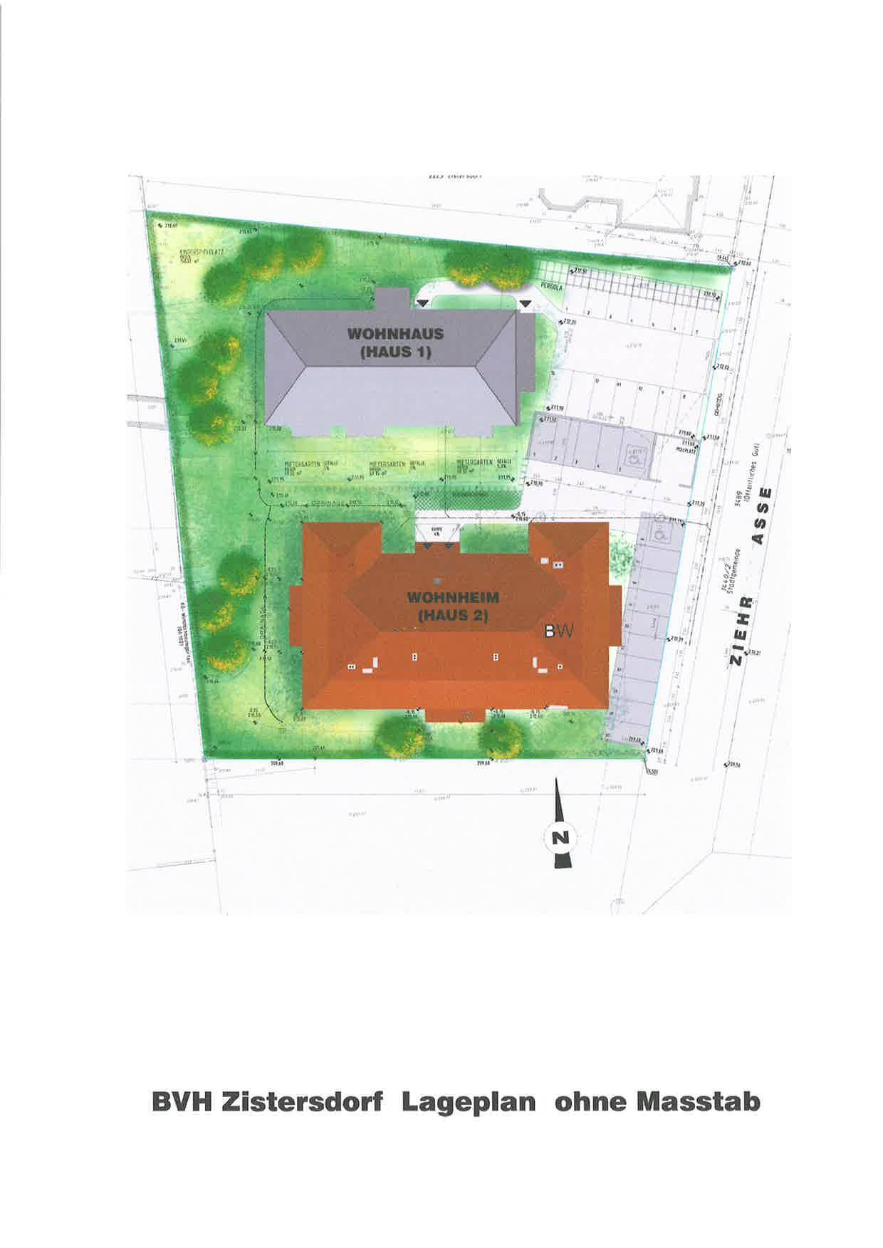
Lage
Ziehrergasse 12, 2225 Zistersdorf
Lagebeschreibung
Die Gemeinde im Nordosten Niederösterreichs, im wunderschönen Weinviertel, steht für Gastfreundschaft, Geschichte, Lebensqualität und den Weinbau. Am Fuße des Steinberges gelegen, umfasst das Gebiet im Bezirk Gänserndorf insgesamt 9 Katastralgemeinden. Kellergassen und Presshäuser prägen das Ortsbild und verleihen der Gemeinde einen einzigartigen Charme. Die unterschiedlichsten Veranstaltungen bieten eine große Abwechslung und die gut ausgebaute Infrastruktur sorgt für genügend Angebote in unmittelbarer Nähe.

