- Garten
- Garage / Stellplatz
- Aufzug
- Garage / Stellplatz
- Aufzug
- Balkon / Loggia / Terrasse
- Garage / Stellplatz
- Aufzug
- Balkon / Loggia / Terrasse
- Garage / Stellplatz
- Aufzug
Projektbeschreibung
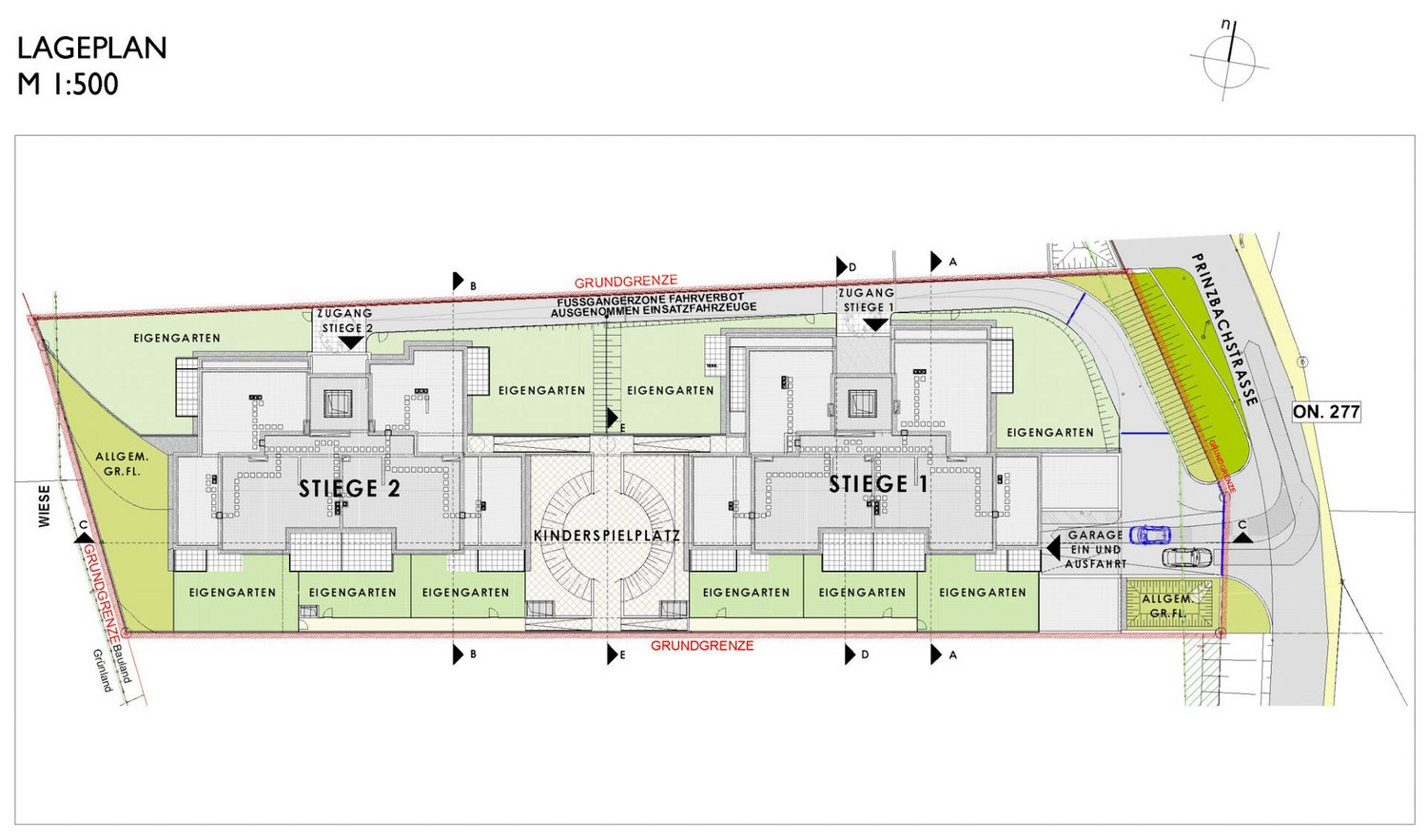
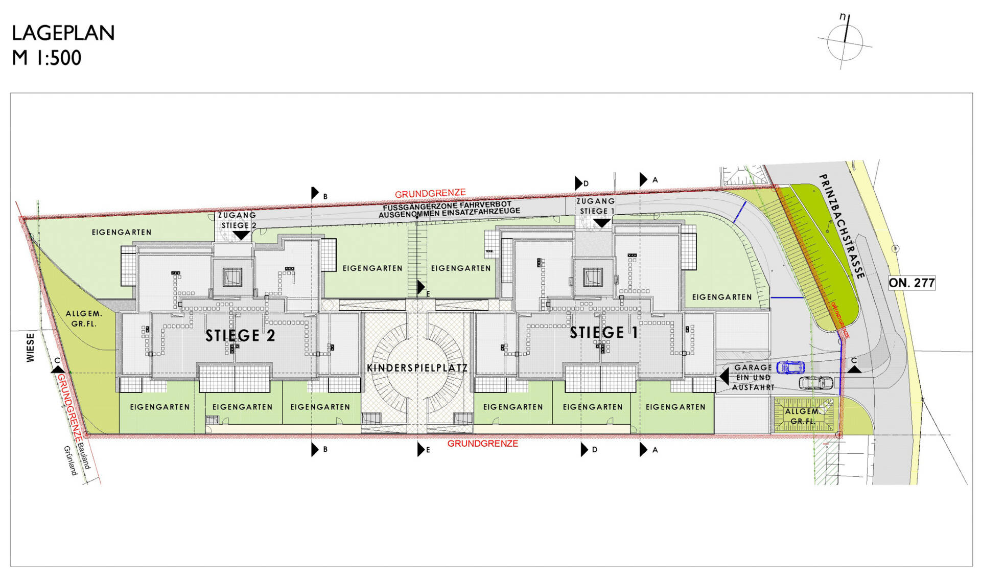
Der überwiegende Teil der Wohnungen ist nach Süden ausgerichtet. Sämtliche Wohnungen punkten mit attraktiven, ausreichend tiefen Freiflächen in Form von Gartenterrassen mit Eigengärten, Balkonen oder Dachterrassen. Die Ausgänge von den Wohnzimmern auf die Gartenterrassen und Balkone werden Barrierefrei gehalten.Alle Wohnungen erhalten eine WohnraumlüftungDie Kinderwagenräume liegen im Nahbereich der Lifte und unter den beiden Vordächern im Eingangsbereich gibt es zusätzliche Fahrradabstellplätze.Der Zentrale Kinderspielplatz auf der Ebene +1 ist optimal von der Prinzbachstraße entfernt und von beiden Stiegen gleich erreichbar.Stiegenhäuser und Gänge sind übersichtlich und einladend angelegt.
Prinzbachstraße 4 (1)
© Johannes Brunnbauer
Prinzbachstraße 4 (2)
© Johannes Brunnbauer
Prinzbachstraße 4 (3)
© Johannes Brunnbauer
07 Lageplan
25 Übersicht E1
08 Lageplan II
47 Übersicht E3
Lage 2_9
Prinzbachstraße 4, 3033 Altlengbach
Lagebeschreibung
Die Gemeinde Altlengbach liegt im Wienerwald, im westlichen Niederösterreich. Die wunderschöne Landschaft lädt zu unterschiedlichsten Outdoor-Aktivitäten ein und bietet viel Raum, um die Seele baumeln zu lassen. Aber nicht nur Naturliebhaber kommen auf ihre Kosten, denn Altlengbach punktet mit kulturellen Besonderheiten und spannenden Sehenswürdigkeiten. Langweilig wird es den neuen Mieterinnen und Mietern also sicher nicht.








