Projektbeschreibung
Die Wohnhausanlage liegt im Bauland Kerngebiet ca. 500m vom historischen Stadtplatz entfernt und umfasst 26 geförderte Wohneinheiten mit Kaufoption, aufgeteilt auf zwei Baukörper mit Süd- bzw. Westorientierung ausgerichtet auf einen ruhigen Innenhof. Jede Wohnung verfügt über einen gedeckten PKW-Abstellplatz, einen Einlagerungsraum und großen Balkon.
Blatt5_Lage
Blatt8_Übersicht 2.OG
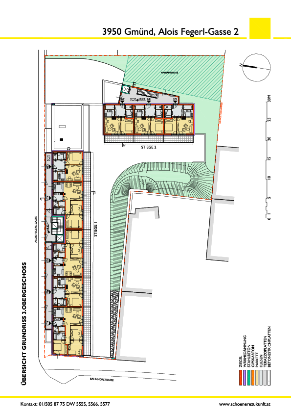
Blatt9_Übersicht 3.OG
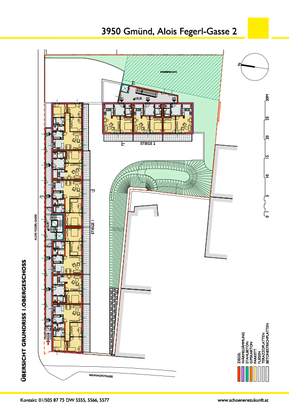
Blatt7_Übersicht 1.OG
Blatt6_Übersicht EG
Alois-Fegerl-Gasse 2, 3950 Gmünd
Lagebeschreibung
Gmünd liegt im oberen Waldviertel und gilt als wirtschaftlich und kulturelle Stadtgemeinde. Doch nicht nur Museumsgänger kommen auf ihre Kosten. Auch Naturliebhaber bekommen einiges zu sehen und viele Möglichkeiten die Seele baumeln zu lassen. Die tolle Landschaft lädt zu ausgedehnten Spaziergängen und den unterschiedlichsten Freizeitaktivitäten ein. Durch die gut ausgebaute Infrastruktur sind viele Geschäfte und Einrichten fußläufig erreichbar.






